| 賃料(@坪単価) (税抜) | ****(***) | 管理費(@坪単価) (税抜) | ****(***)(-) |
|---|---|---|---|
| 敷金(保証金) | *** | 礼金/償却 | ***/*** |
| 更新料 | *** | 仲介手数料 | *** |
| その他費用 | |||
| 所在地 | 東京都千代田区外神田3丁目2-11 | ||
| 交通 |
山手線/ 秋葉原 徒歩6分 東京メトロ銀座線/ 末広町 徒歩5分 中央・総武線/ 御茶ノ水 徒歩9分 |
||
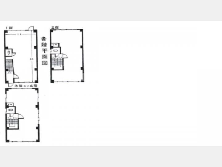
| 間取り | - | 間取り内訳 | |
| 平米数(坪数) | 50.71m² (15.34坪) | 契約形態/契約期間 | 定期借家/*** |
| 築年月(築年数) | 1962年02月(築63.8年) | 方位 | - |
| 建物構造 | RC(鉄筋コンクリート) | 所在階/階建 | *** / 5階建(B0階) |
| 総戸数 | - | 駐車場 | - |
| 引渡 | 相談 | 現況 | - |
| エレベーター | - | 空調 | 個別 |
| 床仕様 | - | トイレ | 和式 |
| 給湯 | 有り | 楽器 | - |
| 設備・条件 | 1フロア1テナント、2階以上、礼金無し、エアコン | ||
| 備考 | ・火災保険加入要 ・保証会社加入要 |
||
| 周辺施設 | |||
| 物件番号 | 100755 | 取引態様 | 仲介 |
| 情報更新日 | *** | ||
3階部分の賃貸店舗事務所物件です。
7~8名規模のオフィスタイプです。
人気の1フロア1テナントですので、他のテナントと共有することなく充実した設備が利用できます。
窓の広い、明るい空間☆
駅近で通勤に便利な立地ですので、ビジネスの拠点に最適です!
冷暖房完備、専用トイレ付なので快適にお仕事をしていただけます!
EVはございません。
軽飲食店相談可。
現場事務所等に最適。
スケルトン渡しとなります。
担当者からのコメント
![]()
スマートフォンをご利用の方は友達追加をして頂ければLINEでのやり取りができます。
【巴ビル】内で空室はある?条件交渉はできる?等のご質問がございましたらお気軽にお問合せ下さい。
巴ビルご関係者各位
日々物件更新に努めておりますが、募集終了や募集条件の変更等にお気付きになられた場合は、
大変お手数ですが掲載情報修正申請にお力添えのほどお願い申し上げます。












