フォトアルバム
| 賃料(@坪単価) (税抜) | ****(***) | 管理費(@坪単価) (税抜) | ****(***)(@1,322円) |
|---|---|---|---|
| 敷金(保証金) | *** | 礼金/償却 | ***/*** |
| 更新料 | *** | 仲介手数料 | *** |
| その他費用 | |||
| 所在地 | 東京都新宿区下宮比町2丁目28 | ||
| 交通 |
中央・総武線/ 飯田橋 徒歩3分 都営大江戸線/ 牛込神楽坂 徒歩10分 東京メトロ東西線/ 神楽坂 徒歩12分 |
||
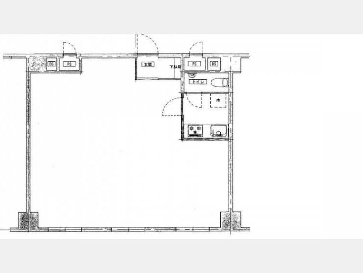
| 間取り | 1R | 間取り内訳 | |
| 平米数(坪数) | 60.00m² (18.15坪) | 契約形態/契約期間 | 普通借家/*** |
| 築年月(築年数) | 1978年09月(築47.2年) | 方位 | 南 |
| 建物構造 | SRC(鉄骨鉄筋コンクリート) | 所在階/階建 | *** / 11階建(B0階) |
| 総戸数 | - | 駐車場 | - |
| 引渡 | 相談 | 現況 | 空家 |
| エレベーター | 3 基 | 空調 | 個別 |
| 床仕様 | タイルカーぺット | トイレ | 洋式 |
| 給湯 | 有り | 楽器 | - |
| 設備・条件 | オートロック、会議室付き、エレベーター、バス・トイレ別、室内洗濯機置き場、2階以上、南向き部屋、エアコン、敷金3ヶ月以下 | ||
| 備考 | ・指定の保証会社加入の場合あり | ||
| 周辺施設 | |||
| 物件番号 | 102126 | 取引態様 | 仲介 |
| 情報更新日 | *** | ||
8階部分、829号室の賃貸事務所物件です。
9~10名規模のオフィスタイプです。
窓の広い、明るい空間☆
駅近で通勤に便利な立地ですので、ビジネスの拠点に最適です!
冷暖房完備、専用トイレ、給湯付なので快適にお仕事をしていただけます!
担当者からのコメント
![]()
スマートフォンをご利用の方は友達追加をして頂ければLINEでのやり取りができます。
【飯田橋ハイタウン】内で空室はある?条件交渉はできる?等のご質問がございましたらお気軽にお問合せ下さい。
飯田橋ハイタウンご関係者各位
日々物件更新に努めておりますが、募集終了や募集条件の変更等にお気付きになられた場合は、
大変お手数ですが掲載情報修正申請にお力添えのほどお願い申し上げます。












