吾妻橋アドバンスビル[満室]の賃貸オフィス、貸事務所物件情報

本情報は過去に掲載された物件の参考情報です。 最新の物件情報など詳細につきましてはお気軽にお問合せください。

所在地
交通
賃料(@坪単価) (税抜)
管理費(@坪単価) (税抜)
敷金(保証金)
礼金
償却
仲介手数料
間取り
平米数(坪数)
物件種別
築年数
方位
構造
所在階/階建
総戸数
東京都墨田区吾妻橋3丁目3-2
都営浅草線/ 本所吾妻橋  徒歩2分
東武伊勢崎線/ 業平橋  徒歩5分
東京メトロ半蔵門線/ 押上  徒歩10分
****(***)
****(***) (@1,999円)
***/***
***
***
***
-
224.15m² (67.82坪)
賃貸事務所・賃貸オフィス
1991年08月
(築34.2年)
-
RC(鉄筋コンクリート)
***/ 7階建-
-

賃料(@坪単価) (税抜) ****(***) 管理費(@坪単価) (税抜) ****(***)(@1,999円)
敷金(保証金) *** 礼金/償却 ***/***
更新料 *** 仲介手数料 ***
その他費用
所在地 東京都墨田区吾妻橋3丁目3-2
交通 都営浅草線/ 本所吾妻橋  徒歩2分
東武伊勢崎線/ 業平橋  徒歩5分
東京メトロ半蔵門線/ 押上  徒歩10分
間取り - 間取り内訳
平米数(坪数) 224.15m² (67.82坪) 契約形態/契約期間 普通借家/***
築年月(築年数) 1991年08月(築34.2年) 方位 -
建物構造 RC(鉄筋コンクリート) 所在階/階建 *** / 7階建-
総戸数 - 駐車場 -
引渡 即時 現況 空家
エレベーター - 空調 個別
床仕様 - トイレ 男女別
給湯 有り 楽器 -
設備・条件 1階がコンビニ、1フロア1テナント、2階以上、最上階、礼金無し、即入居可、エアコン、男女別トイレ
備考 課税対象の項目については、別途消費税がかかります
保険要加入
保証会社に加入いただく場合があります
ごみ処理代:10,000円/月額
解約予告:6ヵ月前
周辺施設
物件番号 113051 取引態様 仲介
情報更新日 ***

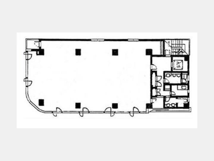
地上7階建て、7階部分、224.15㎡の賃貸オフィス物件です。
人気の1フロア1テナントで、室内を広々ご使用いただけます。
33人規模のオフィス向けの物件です。
シンプルなオフィスをお探しの方に最適です。
長方形のフロアで、中央に柱などありませんので、自由にレイアウトができます。
窓が大きく採光がよい明るいフロアです。
小・中規模の事務所をお探しの事業者様にもお勧めいたします。

この物件に関するご相談・お問い合わせはこちら 受付時間 10:00〜19:00 050-3033-5986

この物件を空き待ちする

担当者からのコメント

友だち追加
スマートフォンをご利用の方は友達追加をして頂ければLINEでのやり取りができます。
【吾妻橋アドバンスビル】内で空室はある?条件交渉はできる?等のご質問がございましたらお気軽にお問合せ下さい。

吾妻橋アドバンスビルご関係者各位

日々物件更新に努めておりますが、募集終了や募集条件の変更等にお気付きになられた場合は、
大変お手数ですが掲載情報修正申請にお力添えのほどお願い申し上げます。

問い合わせ

は、必須入力項目です。

会社名
(個人事業主様はお名前をご入力下さい。)
お名前 姓: 名:

[記入例]東京 太郎  最大各255文字

フリガナ セイ: メイ:

[記入例]トウキョウ タロウ  最大各255文字

電話番号

- -

(半角数字)[記入例]090-1234-5678  最大各4文字

メールアドレス

[記入例]sample@example.com  最大255文字

メールアドレス(再入力)
お問い合わせ内容

吾妻橋アドバンスビルの部屋を
お持ちのオーナー様へ

吾妻橋アドバンスビルの
予想売却価格

1億2500万円

1億3200万円

希望物件無料リクエスト こんなお悩みありませんか? 物件探しに時間が取れない方 最新物件・未掲載物件情報がほしい方 物件探しのプロにお任せ下さい! 無料リクエストはこちら

この物件の空き待ちをする お気に入り物件に登録

この物件に似ている物件

ページトップへ