| 賃料(@坪単価) (税抜) | ****(***) | 管理費(@坪単価) (税抜) | ****(***)(@3,200円) |
|---|---|---|---|
| 敷金(保証金) | *** | 礼金/償却 | ***/*** |
| 更新料 | *** | 仲介手数料 | *** |
| その他費用 | |||
| 所在地 | 東京都中央区銀座1丁目20ー5 | ||
| 交通 |
都営浅草線/ 東銀座 徒歩5分 京葉線/ 八丁堀 徒歩9分 東京メトロ銀座線/ 銀座 徒歩8分 |
||
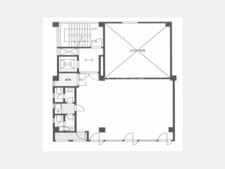
| 間取り | - | 間取り内訳 | |
| 平米数(坪数) | 93.60m² (28.31坪) | 契約形態/契約期間 | 定期借家/*** |
| 築年月(築年数) | 1975年07月(築50.4年) | 方位 | - |
| 建物構造 | RC(鉄筋コンクリート) | 所在階/階建 | *** / 8階建(B1階) |
| 総戸数 | - | 駐車場 | 空有 -台/ - |
| 引渡 | 即時 | 現況 | - |
| エレベーター | 1 基 | 空調 | 個別 |
| 床仕様 | タイルカーぺット | トイレ | 男女別 |
| 給湯 | 有り | 楽器 | - |
| 設備・条件 | エレベーター、2階以上、礼金無し、即入居可、駐車場あり、エアコン、男女別トイレ | ||
| 備考 | |||
| 周辺施設 | |||
| 物件番号 | 117295 | 取引態様 | 仲介 |
| 情報更新日 | *** | ||
3階部分約93㎡の貸事務所です。
12~15人規模のオフィス向けの広さです。
光ファイバー、個別空調、男女別トイレなどの設備がありますので、快適にご利用頂けると思います。
☆☆入居時の条件交渉はお任せください☆☆
担当者からのコメント
![]()
スマートフォンをご利用の方は友達追加をして頂ければLINEでのやり取りができます。
【銀座清和ビル】内で空室はある?条件交渉はできる?等のご質問がございましたらお気軽にお問合せ下さい。
銀座清和ビルご関係者各位
日々物件更新に努めておりますが、募集終了や募集条件の変更等にお気付きになられた場合は、
大変お手数ですが掲載情報修正申請にお力添えのほどお願い申し上げます。












