吉浦ビルⅡ[満室]の賃貸オフィス、貸事務所物件情報

本情報は過去に掲載された物件の参考情報です。 最新の物件情報など詳細につきましてはお気軽にお問合せください。

所在地
交通
賃料(@坪単価) (税抜)
管理費(@坪単価) (税抜)
敷金(保証金)
礼金
償却
仲介手数料
間取り
平米数(坪数)
物件種別
築年数
方位
構造
所在階/階建
総戸数
東京都世田谷区砧8丁目8-20
小田急線/ 祖師ヶ谷大蔵  徒歩2分
****(***)
****(***) (@706円)
***/***
***
***
***
-
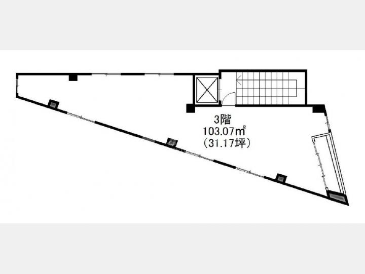
103.07m² (31.18坪)
賃貸事務所・賃貸オフィス
1997年11月
(築27.9年)
-
RC(鉄筋コンクリート)
***/ 4階建(B0階)
0戸

賃料(@坪単価) (税抜) ****(***) 管理費(@坪単価) (税抜) ****(***)(@706円)
敷金(保証金) *** 礼金/償却 ***/***
更新料 *** 仲介手数料 ***
その他費用
所在地 東京都世田谷区砧8丁目8-20
交通 小田急線/ 祖師ヶ谷大蔵  徒歩2分
間取り - 間取り内訳
平米数(坪数) 103.07m² (31.18坪) 契約形態/契約期間 普通借家/***
築年月(築年数) 1997年11月(築27.9年) 方位 -
建物構造 RC(鉄筋コンクリート) 所在階/階建 *** / 4階建(B0階)
総戸数 - 駐車場 -
引渡 相談 現況 -
エレベーター 1 基 空調 個別
床仕様 スケルトン トイレ -
給湯 - 楽器 -
設備・条件 エレベーター、スケルトン、2階以上、エアコン、敷金3ヶ月以下
備考 課税対象の項目については、別途消費税がかかります
保険要加入
保証会社利用必須
砧みなみ商店街組合要加入
袖看板無料
飲食店不可
周辺施設
物件番号 120906 取引態様 仲介
情報更新日 ***

地上4階建て、3階部分、103.07㎡の賃貸オフィス物件です。
人気の1フロア1テナントで、室内を広々ご使用いただけます。
15人規模のオフィス向けの物件です。
シンプルでコンパクトなオフィスをお探しの方に最適です。
個人事務所をお探しの事業者様にもお勧めいたします。
全テナントは学習塾でした。
飲食店不可でその他の物販やサービス、スクールなど業種はご相談ください。
変形のフラですが、遮蔽物がありませんので自由にレイアウトができます。
窓が大きく採光がよい明るいフロアです。

この物件に関するご相談・お問い合わせはこちら 受付時間 10:00〜19:00 050-3033-5986

この物件を空き待ちする

担当者からのコメント

友だち追加
スマートフォンをご利用の方は友達追加をして頂ければLINEでのやり取りができます。
【吉浦ビルⅡ】内で空室はある?条件交渉はできる?等のご質問がございましたらお気軽にお問合せ下さい。

吉浦ビルⅡご関係者各位

日々物件更新に努めておりますが、募集終了や募集条件の変更等にお気付きになられた場合は、
大変お手数ですが掲載情報修正申請にお力添えのほどお願い申し上げます。

問い合わせ

は、必須入力項目です。

会社名
(個人事業主様はお名前をご入力下さい。)
お名前 姓: 名:

[記入例]東京 太郎  最大各255文字

フリガナ セイ: メイ:

[記入例]トウキョウ タロウ  最大各255文字

電話番号

- -

(半角数字)[記入例]090-1234-5678  最大各4文字

メールアドレス

[記入例]sample@example.com  最大255文字

メールアドレス(再入力)
お問い合わせ内容

吉浦ビルⅡの部屋を
お持ちのオーナー様へ

吉浦ビルⅡの
予想売却価格

1億2500万円

1億3200万円

希望物件無料リクエスト こんなお悩みありませんか? 物件探しに時間が取れない方 最新物件・未掲載物件情報がほしい方 物件探しのプロにお任せ下さい! 無料リクエストはこちら

この物件の空き待ちをする お気に入り物件に登録

この物件に似ている物件

ページトップへ