| 賃料(@坪単価) (税抜) | ****(***) | 管理費(@坪単価) (税抜) | ****(***)(-) |
|---|---|---|---|
| 敷金(保証金) | *** | 礼金/償却 | ***/*** |
| 更新料 | *** | 仲介手数料 | *** |
| その他費用 | |||
| 所在地 | 東京都世田谷区上馬2丁目27-3 | ||
| 交通 |
東急田園都市線/ 徒歩7分 東急世田谷線/ 徒歩8分 |
||
| 間取り | - | 間取り内訳 | |
| 平米数(坪数) | 80.48m² (24.35坪) | 契約形態/契約期間 | 普通借家/*** |
| 築年月(築年数) | - | 方位 | - |
| 建物構造 | RC(鉄筋コンクリート) | 所在階/階建 | *** / 3階建(B0階) |
| 総戸数 | - | 駐車場 |
空有 -台/
- 39,000円 要空き確認 |
| 引渡 | 2021年04月中旬 | 現況 | 空家 |
| エレベーター | - | 空調 | 個別 |
| 床仕様 | - | トイレ | 洋式 |
| 給湯 | 有り | 楽器 | - |
| 設備・条件 | 低層(3階建て以下)、1フロア1テナント、2階以上、駐車場あり、エアコン | ||
| 備考 | 課税対象の項目については、別途消費税がかかります 保険要加入 保証会社利用必須 ※飲食、学童保育、出来サービス不可 |
||
| 周辺施設 | |||
| 物件番号 | 121053 | 取引態様 | 仲介 |
| 情報更新日 | *** | ||
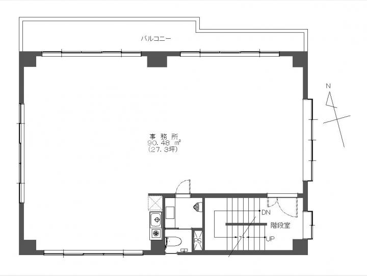
地上3階建て、2階部分、90.48㎡の賃貸オフィス物件です。
12人規模のオフィス向けの物件です。
人気の1フロア1テナントで、室内を広々ご使用いただけます。
窓が大きく採光がよい明るいフロアです。
遮蔽物がありませんので自由にレイアウトができます。
シンプルでコンパクトなオフィスをお探しの方に最適です。
個人事務所をお探しの事業者様にもお勧めいたします。
担当者からのコメント
![]()
スマートフォンをご利用の方は友達追加をして頂ければLINEでのやり取りができます。
【サンライフビル】内で空室はある?条件交渉はできる?等のご質問がございましたらお気軽にお問合せ下さい。
サンライフビルご関係者各位
日々物件更新に努めておりますが、募集終了や募集条件の変更等にお気付きになられた場合は、
大変お手数ですが掲載情報修正申請にお力添えのほどお願い申し上げます。












