第21中央ビル/仲介手数料無料のフロアあります[満室]の賃貸オフィス、貸事務所物件情報

本情報は過去に掲載された物件の参考情報です。 最新の物件情報など詳細につきましてはお気軽にお問合せください。

所在地
交通
賃料(@坪単価) (税抜)
管理費(@坪単価) (税抜)
敷金(保証金)
礼金
償却
仲介手数料
間取り
平米数(坪数)
物件種別
築年数
方位
構造
所在階/階建
総戸数
東京都中央区銀座1丁目8-21
東京メトロ有楽町線/ 銀座一丁目  徒歩2分
山手線/ 有楽町  徒歩8分
徒歩10分
****(***)
****(***) (@3,500円)
***/***
***
***
***
-
382.00m² (115.55坪)
賃貸事務所・賃貸オフィス
1982年10月
(築42.9年)
-
SRC(鉄骨鉄筋コンクリート)
***/ 1階建(B9階)
0戸

フォトアルバム

外観【第21中央ビル】

外観【第21中央ビル】

外観【第21中央ビル】

外観【第21中央ビル】

外観【第21中央ビル】

外観【第21中央ビル】

外観【第21中央ビル】

外観【第21中央ビル】

外観【第21中央ビル】

外観【第21中央ビル】

外観【第21中央ビル】

外観【第21中央ビル】

入口周辺【第21中央ビル】

入口周辺【第21中央ビル】

入口周辺【第21中央ビル】

入口周辺【第21中央ビル】

物件入口【第21中央ビル】

物件入口【第21中央ビル】

エレベーター ・社名案内板【第21中央ビル】

エレベーター ・社名案内板【第21中央ビル】

メールボックス【第21中央ビル】

メールボックス【第21中央ビル】

前面道路【第21中央ビル】

前面道路【第21中央ビル】

前面道路【第21中央ビル】

前面道路【第21中央ビル】

前の写真次の写真

賃料(@坪単価) (税抜) ****(***) 管理費(@坪単価) (税抜) ****(***)(@3,500円)
敷金(保証金) *** 礼金/償却 ***/***
更新料 *** 仲介手数料 ***
その他費用
所在地 東京都中央区銀座1丁目8-21
交通 東京メトロ有楽町線/ 銀座一丁目  徒歩2分
山手線/ 有楽町  徒歩8分
徒歩10分
間取り - 間取り内訳
平米数(坪数) 382.00m² (115.55坪) 契約形態/契約期間 -/***
築年月(築年数) 1982年10月(築42.9年) 方位 -
建物構造 SRC(鉄骨鉄筋コンクリート) 所在階/階建 *** / 1階建(B9階)
総戸数 - 駐車場 -
引渡 2021年06月上旬 現況 -
エレベーター 1 基 空調 個別
床仕様 タイルカーぺット トイレ 男女別
給湯 - 楽器 -
設備・条件 低層(3階建て以下)、エレベーター、機械警備、スケルトン、1階、最上階、礼金無し、エアコン、男女別トイレ
備考 ・図面と現況が異なる場合は現況優先とします。
周辺施設
物件番号 124050 取引態様 仲介
情報更新日 ***

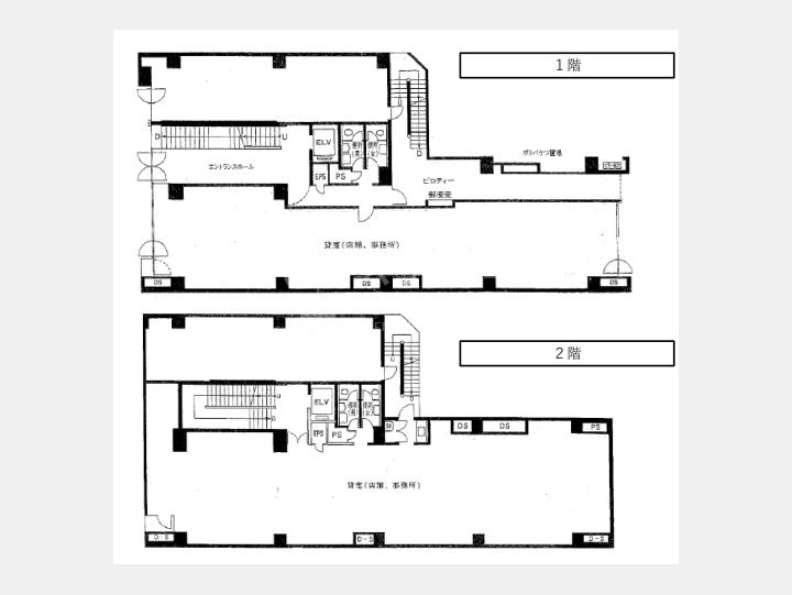
1階と2階部分、約382㎡の貸事務所です。
複数駅・複数路線が利用できるアクセス抜群の物件なので、ビジネスの拠点に最適です。
スケルトンでのお引き渡しなので、様々な事業に対応可能です。

☆☆入居時の条件交渉はお任せください☆☆

この物件に関するご相談・お問い合わせはこちら 受付時間 10:00〜19:00 050-3033-5986

この物件を空き待ちする

担当者からのコメント

友だち追加
スマートフォンをご利用の方は友達追加をして頂ければLINEでのやり取りができます。
【第21中央ビル/】内で空室はある?条件交渉はできる?等のご質問がございましたらお気軽にお問合せ下さい。

第21中央ビル/仲介手数料無料のフロアありますご関係者各位

日々物件更新に努めておりますが、募集終了や募集条件の変更等にお気付きになられた場合は、
大変お手数ですが掲載情報修正申請にお力添えのほどお願い申し上げます。

問い合わせ

は、必須入力項目です。

会社名
(個人事業主様はお名前をご入力下さい。)
お名前 姓: 名:

[記入例]東京 太郎  最大各255文字

フリガナ セイ: メイ:

[記入例]トウキョウ タロウ  最大各255文字

電話番号

- -

(半角数字)[記入例]090-1234-5678  最大各4文字

メールアドレス

[記入例]sample@example.com  最大255文字

メールアドレス(再入力)
お問い合わせ内容

第21中央ビル/仲介手数料無料のフロアありますの部屋を
お持ちのオーナー様へ

第21中央ビル/仲介手数料無料のフロアありますの
予想売却価格

1億2500万円

1億3200万円

希望物件無料リクエスト こんなお悩みありませんか? 物件探しに時間が取れない方 最新物件・未掲載物件情報がほしい方 物件探しのプロにお任せ下さい! 無料リクエストはこちら

この物件の空き待ちをする お気に入り物件に登録

この物件の他の空室

間取り
専有面積
賃料
管理費
敷金
礼金
9F 1R
216.05m²
165.33万円
25.1598万円
12ヶ月
-
9F 216.05m² 165.33万円
25.1597万円
12ヶ月
-
9F 216.05m² 165.34万円
25.1597万円
12ヶ月
-

ページトップへ