フォトアルバム
2階各部屋入口【矢板ビル】
2階給湯【矢板ビル】
2階ロッカー【矢板ビル】
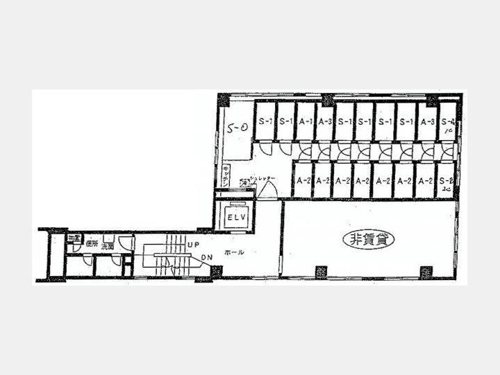
2A3間取り図【矢板ビル】
| 賃料(@坪単価) (税抜) | ****(***) | 管理費(@坪単価) (税抜) | ****(***)(-) |
|---|---|---|---|
| 敷金(保証金) | *** | 礼金/償却 | ***/*** |
| 更新料 | *** | 仲介手数料 | *** |
| その他費用 | |||
| 所在地 | 東京都千代田区内神田2丁目6-2 | ||
| 交通 |
山手線/ 神田 徒歩4分 総武本線/ 新日本橋 徒歩7分 東京メトロ丸ノ内線/ 大手町 徒歩5分 |
||
| 間取り | - | 間取り内訳 | |
| 平米数(坪数) | 1.70m² (0.51坪) | 契約形態/契約期間 | 普通借家/*** |
| 築年月(築年数) | 1972年10月(築53.1年) | 方位 | - |
| 建物構造 | RC(鉄筋コンクリート) | 所在階/階建 | *** / 7階建(B0階) |
| 総戸数 | - | 駐車場 | - |
| 引渡 | 即時 | 現況 | 空家 |
| エレベーター | 1 基 | 空調 | セントラル空調 |
| 床仕様 | - | トイレ | 共用 |
| 給湯 | 有り | 楽器 | - |
| 設備・条件 | オートロック、会議室付き、エレベーター、機械警備、2階以上、礼金無し、即入居可、エアコン、敷金3ヶ月以下 | ||
| 備考 | |||
| 周辺施設 | |||
| 物件番号 | 15439 | 取引態様 | 仲介 |
| 情報更新日 | *** | ||
2階部分のレンタルオフィス物件です。
光ファイバー対応!
一定条件で貸し会議室が無料利用できます。
防犯(機械警備)付いています!
24時間使用可!契約期間相談可。
机・イス・キャビネットの設備有り!
冷蔵庫・キッチン・シュレッダー・掃除機などの共用設備もあります。
担当者からのコメント
☆★【矢板ビル】内で、同じ間取で空室がある場合がございますので、お電話又はメールにてご連絡下さい★☆
矢板ビルご関係者各位
日々物件更新に努めておりますが、募集終了や募集条件の変更等にお気付きになられた場合は、
大変お手数ですが掲載情報修正申請にお力添えのほどお願い申し上げます。












