フォトアルバム
| 賃料(@坪単価) (税抜) | ****(***) | 管理費(@坪単価) (税抜) | 相談 (-) | 
|---|---|---|---|
| 敷金(保証金) | *** | 礼金/償却 | ***/*** | 
| 更新料 | *** | 仲介手数料 | *** | 
| その他費用 | |||
| 所在地 | 東京都港区台場2丁目3-1 | ||
| 交通 | ゆりかもめ/													お台場海浜公園 																					徒歩5分 ゆりかもめ/ 台場 徒歩3分 りんかい線/ 東京テレポート 徒歩5分 | ||
| 間取り | - | 間取り内訳 | |
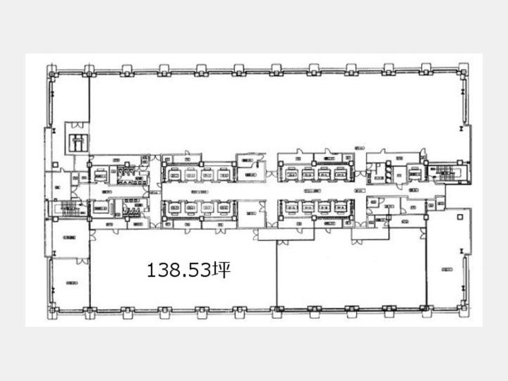
| 平米数(坪数) | 457.97m² (138.54坪) | 契約形態/契約期間 | -/*** | 
| 築年月(築年数) | 2001年02月(築24.8年) | 方位 | - | 
| 建物構造 | 鉄骨造 | 所在階/階建 | *** / 23階建(B2階) | 
| 総戸数 | - | 駐車場 | - | 
| 引渡 | 即時 | 現況 | - | 
| エレベーター | 16 基 | 空調 | セントラル空調 | 
| 床仕様 | OAフロア | トイレ | 男女別 | 
| 給湯 | 有り | 楽器 | - | 
| 設備・条件 | 1階がコンビニ、タワー(20階建て以上)、エレベーター、2階以上、礼金無し、敷金無し、即入居可、エアコン、男女別トイレ、OAフロア、仲介手数料無料 | ||
| 備考 | ・図面と現況が異なる場合、現況を優先します。 | ||
| 周辺施設 | |||
| 物件番号 | 15798 | 取引態様 | 仲介 | 
| 情報更新日 | *** | ||
地上23階・地下2階建ての3階部分約457㎡の貸事務所です。
60人前後規模の広さのオフィスとなっております。
24時間使用可能、機械警備と有人警備の併用でセキュリティー面も安心してご利用いただけます。
入居者用の会議室や応接室も完備されているのであらゆるビジネスシーンに対応可能です。
☆★仲介手数料無料★☆
☆☆入居時の条件交渉はお任せください☆☆
担当者からのコメント
☆★☆【トレードピアお台場】内で、同じ間取りで空室がある場合がございますので、お電話又はメールにてご連絡ください。☆★☆
トレードピアお台場/仲介手数料無料ご関係者各位
日々物件更新に努めておりますが、募集終了や募集条件の変更等にお気付きになられた場合は、
大変お手数ですが掲載情報修正申請にお力添えのほどお願い申し上げます。
 
											 
						 
						 
						 
						

 
				 
				 
				 
				 
				 
				 
				 
				 
				 
				 
				 
				 
				 
				 
				 
						 
						 
						 
						 
						 
						 
						 
						 
						 
						 
						 
						 
						 
						 
						









