フォトアルバム
| 賃料(@坪単価) (税抜) | ****(***) | 管理費(@坪単価) (税抜) | 相談 (-) |
|---|---|---|---|
| 敷金(保証金) | *** | 礼金/償却 | ***/*** |
| 更新料 | *** | 仲介手数料 | *** |
| その他費用 | |||
| 所在地 | 東京都江東区亀戸2丁目22-17 | ||
| 交通 |
中央・総武線/ 亀戸 徒歩3分 東武亀戸線/ 亀戸 徒歩4分 中央・総武線/ 錦糸町 徒歩12分 |
||
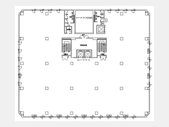
| 間取り | - | 間取り内訳 | |
| 平米数(坪数) | 1011.33m² (306.00坪) | 契約形態/契約期間 | -/*** |
| 築年月(築年数) | 1979年09月(築46.2年) | 方位 | - |
| 建物構造 | SRC(鉄骨鉄筋コンクリート) | 所在階/階建 | *** / 8階建(B1階) |
| 総戸数 | - | 駐車場 | - |
| 引渡 | 相談 | 現況 | 賃貸中 |
| エレベーター | 3 基 | 空調 | 個別 |
| 床仕様 | OAフロア | トイレ | 男女別 |
| 給湯 | - | 楽器 | - |
| 設備・条件 | エレベーター、2階以上、礼金無し、敷金無し、エアコン、男女別トイレ、OAフロア、仲介手数料無料 | ||
| 備考 | |||
| 周辺施設 | |||
| 物件番号 | 24305 | 取引態様 | 仲介 |
| 情報更新日 | *** | ||
日本生命亀戸ビル/仲介手数料無料ご関係者各位
日々物件更新に努めておりますが、募集終了や募集条件の変更等にお気付きになられた場合は、
大変お手数ですが掲載情報修正申請にお力添えのほどお願い申し上げます。












