フォトアルバム
| 賃料(@坪単価) (税抜) | ****(***) | 管理費(@坪単価) (税抜) | 相談 (-) |
|---|---|---|---|
| 敷金(保証金) | *** | 礼金/償却 | ***/*** |
| 更新料 | *** | 仲介手数料 | *** |
| その他費用 | |||
| 所在地 | 東京都豊島区東池袋1丁目11-1 | ||
| 交通 |
山手線/ 池袋 徒歩4分 東京メトロ有楽町線/ 東池袋 徒歩6分 東京メトロ副都心線/ 池袋 徒歩8分 |
||
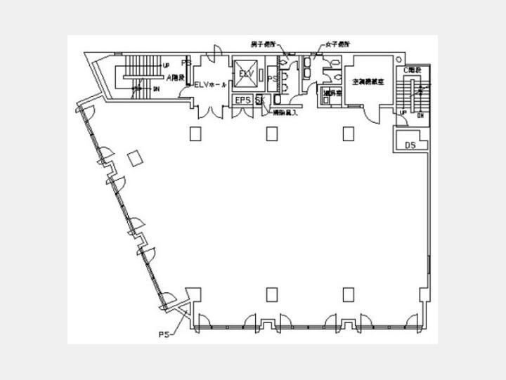
| 間取り | - | 間取り内訳 | |
| 平米数(坪数) | 252.94m² (76.53坪) | 契約形態/契約期間 | -/*** |
| 築年月(築年数) | 1980年01月(築45.9年) | 方位 | - |
| 建物構造 | SRC(鉄骨鉄筋コンクリート) | 所在階/階建 | *** / 8階建(B1階) |
| 総戸数 | - | 駐車場 | - |
| 引渡 | 相談 | 現況 | 賃貸中 |
| エレベーター | 1 基 | 空調 | セントラル空調 |
| 床仕様 | OAフロア | トイレ | 男女別 |
| 給湯 | - | 楽器 | - |
| 設備・条件 | エレベーター、2階以上、最上階、礼金無し、敷金無し、エアコン、男女別トイレ、OAフロア、仲介手数料無料 | ||
| 備考 | |||
| 周辺施設 | |||
| 物件番号 | 24353 | 取引態様 | 仲介 |
| 情報更新日 | *** | ||
オーク東池袋ビル (旧日本生命東池袋ビル)ご関係者各位
日々物件更新に努めておりますが、募集終了や募集条件の変更等にお気付きになられた場合は、
大変お手数ですが掲載情報修正申請にお力添えのほどお願い申し上げます。












