フォトアルバム
| 賃料(@坪単価) (税抜) | ****(***) | 管理費(@坪単価) (税抜) | ****(***)(-) |
|---|---|---|---|
| 敷金(保証金) | *** | 礼金/償却 | ***/*** |
| 更新料 | *** | 仲介手数料 | *** |
| その他費用 | 水道料: | ||
| 所在地 | 東京都港区北青山3丁目15-16 | ||
| 交通 |
東京メトロ銀座線/ 表参道 徒歩2分 |
||
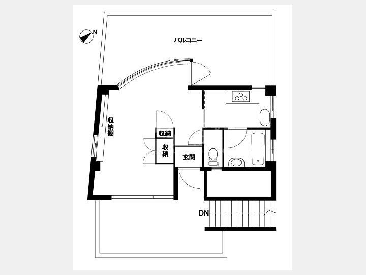
| 間取り | - | 間取り内訳 | |
| 平米数(坪数) | 31.50m² (9.53坪) | 契約形態/契約期間 | -/*** |
| 築年月(築年数) | 1991年03月(築34.6年) | 方位 | - |
| 建物構造 | RC(鉄筋コンクリート) | 所在階/階建 | *** / 4階建- |
| 総戸数 | - | 駐車場 | 空無 |
| 引渡 | 即時 | 現況 | 空家 |
| エレベーター | - | 空調 | - |
| 床仕様 | - | トイレ | - |
| 給湯 | - | 楽器 | - |
| 設備・条件 | 保証人不要、バス・トイレ別、2階以上、最上階、即入居可 | ||
| 備考 | |||
| 周辺施設 | |||
| 物件番号 | 257298 | 取引態様 | 媒介 |
| 情報更新日 | *** | ||
担当者からのコメント
オフィス、事務所利用、SOHO利用(住宅件事務所)、店舗利用など、様々な用途での利用が出来る場合がございます。業種によって異なりますので、詳しくはお問合せ下さい。スマートフォンをご利用の方は友達追加をして頂ければLINEでのやり取りができます。この建物内で空室はある?条件交渉はできる?等のご質問がございましたらお気軽にLINE@のリンクからお問合せ下さい。➡➡➡![]()
オラシオン青山ご関係者各位
日々物件更新に努めておりますが、募集終了や募集条件の変更等にお気付きになられた場合は、
大変お手数ですが掲載情報修正申請にお力添えのほどお願い申し上げます。












