フォトアルバム
| 賃料(@坪単価) (税抜) | ****(***) | 管理費(@坪単価) (税抜) | ****(***)(@1,904円) |
|---|---|---|---|
| 敷金(保証金) | *** | 礼金/償却 | ***/*** |
| 更新料 | *** | 仲介手数料 | *** |
| その他費用 | |||
| 所在地 | 東京都台東区下谷1丁目13-6 | ||
| 交通 |
東京メトロ日比谷線/ 入谷 徒歩3分 山手線/ 鶯谷 徒歩4分 東京メトロ銀座線/ 上野 徒歩9分 |
||
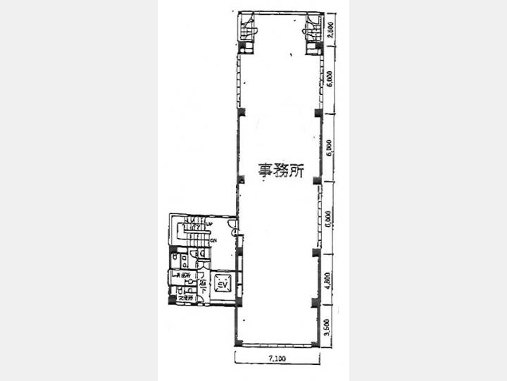
| 間取り | - | 間取り内訳 | |
| 平米数(坪数) | 111.68m² (33.79坪) | 契約形態/契約期間 | -/*** |
| 築年月(築年数) | 1988年06月(築37.4年) | 方位 | - |
| 建物構造 | SRC(鉄骨鉄筋コンクリート) | 所在階/階建 | *** / 7階建(B0階) |
| 総戸数 | - | 駐車場 | - |
| 引渡 | 即時 | 現況 | 空家 |
| エレベーター | 1 基 | 空調 | 個別 |
| 床仕様 | - | トイレ | 洋式 |
| 給湯 | 有り | 楽器 | - |
| 設備・条件 | エレベーター、2階以上、礼金無し、即入居可、エアコン | ||
| 備考 | ※SOHO、事務所使用相談可! ※手数料半額キャンペーン中! |
||
| 周辺施設 | |||
| 物件番号 | 27442 | 取引態様 | 仲介 |
| 情報更新日 | *** | ||
4階部分約111.68m²の貸事務所です。人気の1フロア1テナント物件です!
10~15名規模のオフィス向けの広さです。
陽当たりも良好で、室内は長方形でレイアウトしやすい間取りです。設備としてはエアコンやEVなどに対応しており、セキュリティ面も万全です。人気のある1フロア1テナントで、セキュリティは機械警備システムが導入されています。
担当者からのコメント
☆★【ポラリスビル】内で、同じ間取で空室がある場合がございますので、お電話又はメールにてご連絡下さい★☆
ポラリスビルご関係者各位
日々物件更新に努めておりますが、募集終了や募集条件の変更等にお気付きになられた場合は、
大変お手数ですが掲載情報修正申請にお力添えのほどお願い申し上げます。












