フォトアルバム

4F室内写真1【川久保ビル】

4F室内写真2【川久保ビル】

4F給湯【川久保ビル】

4F洗面【川久保ビル】

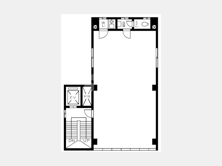
4F間取り図【川久保ビル】
賃料(@坪単価) (税抜) | ****(***) | 管理費(@坪単価) (税抜) | ****(***)(@2,369円) |
---|---|---|---|
敷金(保証金) | *** | 礼金/償却 | ***/*** |
更新料 | *** | 仲介手数料 | *** |
その他費用 | |||
所在地 | 東京都台東区上野6丁目7-16 | ||
交通 |
山手線/ 上野 徒歩3分 山手線/ 御徒町 徒歩5分 |
||
間取り | - | 間取り内訳 | |
平米数(坪数) | 62.81m² (19.00坪) | 契約形態/契約期間 | 普通借家/*** |
築年月(築年数) | 1972年10月(築52.9年) | 方位 | 東 |
建物構造 | RC(鉄筋コンクリート) | 所在階/階建 | *** / 8階建(B0階) |
総戸数 | - | 駐車場 | - |
引渡 | 即時 | 現況 | 空家 |
エレベーター | 1 基 | 空調 | 個別 |
床仕様 | タイルカーぺット | トイレ | 洋式 |
給湯 | 有り | 楽器 | - |
設備・条件 | エレベーター、1フロア1テナント、2階以上、礼金無し、即入居可、エアコン | ||
備考 | |||
周辺施設 | |||
物件番号 | 31158 | 取引態様 | 仲介 |
情報更新日 | *** |
4階部分1フロア1テナントの賃貸事務所物件です。
7~9人規模のオフィス向けの広さです。
冷暖房完備なので快適にお仕事をしていただけます!
光ファイバー対応!
複数路線にアクセスしやすい立地ですので、ビジネスの拠点に最適です!
長方形で、とてもレイアウトしやすい空間です。
☆☆入居時の条件交渉はお任せ下さい☆☆
担当者からのコメント
☆★【川久保ビル】内で、同じ間取で空室がある場合がございますので、お電話又はメールにてご連絡下さい★☆
川久保ビルご関係者各位
日々物件更新に努めておりますが、募集終了や募集条件の変更等にお気付きになられた場合は、
大変お手数ですが掲載情報修正申請にお力添えのほどお願い申し上げます。