フォトアルバム
| 賃料(@坪単価) (税抜) | ****(***) | 管理費(@坪単価) (税抜) | 相談 (-) |
|---|---|---|---|
| 敷金(保証金) | *** | 礼金/償却 | ***/*** |
| 更新料 | *** | 仲介手数料 | *** |
| その他費用 | |||
| 所在地 | 東京都品川区南大井6丁目25-3 | ||
| 交通 |
京浜東北線/ 大森 徒歩4分 京急本線/ 大森海岸 徒歩7分 京急本線/ 平和島 徒歩19分 |
||
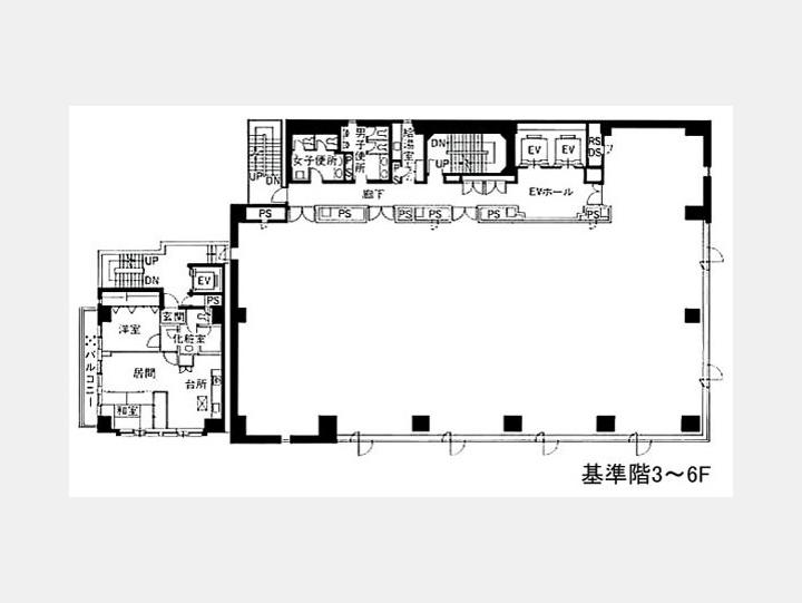
| 間取り | - | 間取り内訳 | |
| 平米数(坪数) | 480.00m² (144.93坪) | 契約形態/契約期間 | -/*** |
| 築年月(築年数) | 1992年07月(築33.4年) | 方位 | - |
| 建物構造 | 鉄骨造 | 所在階/階建 | *** / 8階建(B1階) |
| 総戸数 | - | 駐車場 |
- 機械式9台 |
| 引渡 | 相談 | 現況 | - |
| エレベーター | 2 基 | 空調 | 個別 |
| 床仕様 | OAフロア | トイレ | 男女別 |
| 給湯 | - | 楽器 | - |
| 設備・条件 | エレベーター、機械警備、2階以上、礼金無し、敷金無し、エアコン、男女別トイレ、OAフロア、仲介手数料無料 | ||
| 備考 | エントランス:土日・祝日開放 床仕様:タイルカーペット・OAフロア【50mm】 天井高:2600mm 光ファイバー引き込み済 |
||
| 周辺施設 | |||
| 物件番号 | 32561 | 取引態様 | 仲介 |
| 情報更新日 | *** | ||
ビリーヴ大森/仲介手数料無料ご関係者各位
日々物件更新に努めておりますが、募集終了や募集条件の変更等にお気付きになられた場合は、
大変お手数ですが掲載情報修正申請にお力添えのほどお願い申し上げます。












