フォトアルバム
| 賃料(@坪単価) (税抜) | ****(***) | 管理費(@坪単価) (税抜) | ****(***)(@3,000円) |
|---|---|---|---|
| 敷金(保証金) | *** | 礼金/償却 | ***/*** |
| 更新料 | *** | 仲介手数料 | *** |
| その他費用 | |||
| 所在地 | 東京都港区芝浦3丁目11-5 | ||
| 交通 |
山手線/ 田町 徒歩5分 都営浅草線/ 三田 徒歩7分 ゆりかもめ/ 芝浦ふ頭 徒歩11分 |
||
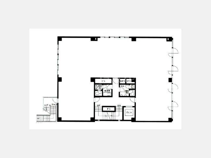
| 間取り | - | 間取り内訳 | |
| 平米数(坪数) | 257.85m² (78.01坪) | 契約形態/契約期間 | 普通借家/*** |
| 築年月(築年数) | 1976年06月(築49.4年) | 方位 | - |
| 建物構造 | SRC(鉄骨鉄筋コンクリート) | 所在階/階建 | *** / 7階建(B0階) |
| 総戸数 | - | 駐車場 | 空有 -台/ - 50,000円 |
| 引渡 | 2016年12月中旬 | 現況 | 賃貸中 |
| エレベーター | 1 基 | 空調 | 個別 |
| 床仕様 | OAフロア | トイレ | 男女別 |
| 給湯 | 有り | 楽器 | - |
| 設備・条件 | エレベーター、1フロア1テナント、2階以上、礼金無し、駐車場あり、エアコン、男女別トイレ、OAフロア | ||
| 備考 | 火災保険要加入 | ||
| 周辺施設 | |||
| 物件番号 | 36767 | 取引態様 | 仲介 |
| 情報更新日 | *** | ||
5階部分の賃貸事務所物件です。
人気の1フロア1テナントですので、他のテナントと共有することなく利用できます。
35~39人規模のオフィス向けの広さです。
男女別トイレ、給湯設備、個別空調などの設備がありますので、快適にご利用頂けると思います。
複数路線に余裕の徒歩圏内!
余分な柱がないのでレイアウトしやすい空間です。
貸室扉3箇所有
担当者からのコメント
![]()
スマートフォンをご利用の方は友達追加をして頂ければLINEでのやり取りができます。
【第三協栄ビル】内で空室はある?条件交渉はできる?等のご質問がございましたらお気軽にお問合せ下さい。
第三協栄ビルご関係者各位
日々物件更新に努めておりますが、募集終了や募集条件の変更等にお気付きになられた場合は、
大変お手数ですが掲載情報修正申請にお力添えのほどお願い申し上げます。












