フォトアルバム
| 賃料(@坪単価) (税抜) | ****(***) | 管理費(@坪単価) (税抜) | 相談 (-) |
|---|---|---|---|
| 敷金(保証金) | *** | 礼金/償却 | ***/*** |
| 更新料 | *** | 仲介手数料 | *** |
| その他費用 | 1㎡当たりの清掃代:***, | ||
| 所在地 | 東京都中央区銀座7丁目17-14 | ||
| 交通 |
都営大江戸線/ 築地市場 徒歩2分 東京メトロ日比谷線/ 東銀座 徒歩4分 山手線/ 新橋 徒歩8分 |
||
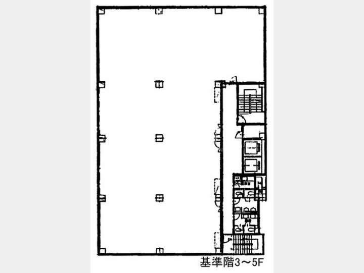
| 間取り | - | 間取り内訳 | |
| 平米数(坪数) | 272.00m² (82.19坪) | 契約形態/契約期間 | 普通借家/*** |
| 築年月(築年数) | 1985年07月(築40.4年) | 方位 | - |
| 建物構造 | SRC(鉄骨鉄筋コンクリート) | 所在階/階建 | *** / 9階建(B1階) |
| 総戸数 | - | 駐車場 | - |
| 引渡 | 相談 | 現況 | - |
| エレベーター | 2 基 | 空調 | 個別 |
| 床仕様 | OAフロア | トイレ | 男女別 |
| 給湯 | 有り | 楽器 | - |
| 設備・条件 | エレベーター、機械警備、角部屋、1階、礼金無し、敷金無し、エアコン、男女別トイレ、OAフロア、仲介手数料無料 | ||
| 備考 | ・新耐震基準 ・光ケーブル対応 ・24時間使用可 ・エントランス:土日・祝日開放 |
||
| 周辺施設 | |||
| 物件番号 | 42027 | 取引態様 | 仲介 |
| 情報更新日 | *** | ||
この賃貸オフィス物件は、築地市場駅まで徒歩2分、東銀座駅まで徒歩4分、新橋駅まで徒歩8分の賃貸オフィス【松岡銀七ビル】です!!
☆★☆★諸条件交渉可能+仲介手数料無料物件★☆★☆
担当者からのコメント
☆★【松岡銀七ビル】内で、同じ間取で空室がある場合がございますので、お電話又はメールにてご連絡下さい★☆
松岡銀七ビルご関係者各位
日々物件更新に努めておりますが、募集終了や募集条件の変更等にお気付きになられた場合は、
大変お手数ですが掲載情報修正申請にお力添えのほどお願い申し上げます。












