松岡品川埠頭ビル/仲介手数料無料のお部屋があります[満室]の賃貸オフィス、貸事務所物件情報

本情報は過去に掲載された物件の参考情報です。 最新の物件情報など詳細につきましてはお気軽にお問合せください。

所在地
交通
賃料(@坪単価) (税抜)
管理費(@坪単価) (税抜)
敷金(保証金)
礼金
償却
仲介手数料
間取り
平米数(坪数)
物件種別
築年数
方位
構造
所在階/階建
総戸数
東京都港区港南5丁目4-38
東京モノレール/ 天王洲アイル  徒歩14分
りんかい線/ 天王洲アイル  徒歩16分
山手線/ 品川  徒歩23分
****(***)
****(***) (@1,000円)
***/***
***
***
***
-
330.57m² (100.00坪)
賃貸事務所・賃貸オフィス
1969年11月
(築55.9年)
-
RC(鉄筋コンクリート)
***/ 2階建(B0階)
0戸

フォトアルバム

外観 【松岡品川埠頭ビル】

外観 【松岡品川埠頭ビル】

外観 【松岡品川埠頭ビル】

外観 【松岡品川埠頭ビル】

外観 【松岡品川埠頭ビル】

外観 【松岡品川埠頭ビル】

外観 【松岡品川埠頭ビル】

外観 【松岡品川埠頭ビル】

外観 【松岡品川埠頭ビル】

外観 【松岡品川埠頭ビル】

外観 【松岡品川埠頭ビル】

外観 【松岡品川埠頭ビル】

入口 【松岡品川埠頭ビル】

入口 【松岡品川埠頭ビル】

入口 【松岡品川埠頭ビル】

入口 【松岡品川埠頭ビル】

入口 【松岡品川埠頭ビル】

入口 【松岡品川埠頭ビル】

共用部 【松岡品川埠頭ビル】

共用部 【松岡品川埠頭ビル】

周辺道路 【松岡品川埠頭ビル】

周辺道路 【松岡品川埠頭ビル】

周辺道路 【松岡品川埠頭ビル】

周辺道路 【松岡品川埠頭ビル】

前の写真次の写真

賃料(@坪単価) (税抜) ****(***) 管理費(@坪単価) (税抜) ****(***)(@1,000円)
敷金(保証金) *** 礼金/償却 ***/***
更新料 *** 仲介手数料 ***
その他費用 火災保険:***, 鍵交換代(税別):***, 書類作成費(税別):***,
所在地 東京都港区港南5丁目4-38
交通 東京モノレール/ 天王洲アイル  徒歩14分
りんかい線/ 天王洲アイル  徒歩16分
山手線/ 品川  徒歩23分
間取り - 間取り内訳
平米数(坪数) 330.57m² (100.00坪) 契約形態/契約期間 普通借家/***
築年月(築年数) 1969年11月(築55.9年) 方位 -
建物構造 RC(鉄筋コンクリート) 所在階/階建 *** / 2階建(B0階)
総戸数 - 駐車場 -

要確認

引渡 即時 現況 空家
エレベーター - 空調 個別
床仕様 タイルカーぺット トイレ 男女別
給湯 有り 楽器 -
設備・条件 1階がコンビニ、低層(3階建て以下)、角部屋、1階、礼金無し、即入居可、エアコン、男女別トイレ、仲介手数料無料
備考 火災保険要加入
保証会社加入必須
24時間サービス要加入
周辺施設
物件番号 42035 取引態様 仲介
情報更新日 ***

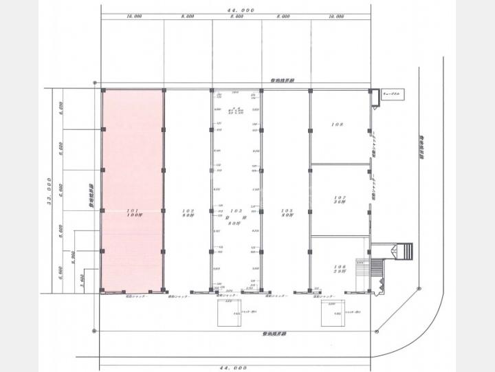
1階部分の賃貸事務所物件です。
45~50人規模のオフィス向けの広さです。
男女別トイレ、給湯設備、個別空調などの設備がありますので、快適にご利用頂けると思います。
駅から少し離れていますが、その分賃料が激安の物件です!
長方形でレイアウトしやすい空間です。

☆★仲介手数料無料です!!★☆

この物件に関するご相談・お問い合わせはこちら 受付時間 10:00〜19:00 050-3033-5986

この物件を空き待ちする

担当者からのコメント

友だち追加
スマートフォンをご利用の方は友達追加をして頂ければLINEでのやり取りができます。
【松岡品川埠頭ビル】内で空室はある?条件交渉はできる?等のご質問がございましたらお気軽にお問合せ下さい。

松岡品川埠頭ビル/仲介手数料無料のお部屋がありますご関係者各位

日々物件更新に努めておりますが、募集終了や募集条件の変更等にお気付きになられた場合は、
大変お手数ですが掲載情報修正申請にお力添えのほどお願い申し上げます。

問い合わせ

は、必須入力項目です。

会社名
(個人事業主様はお名前をご入力下さい。)
お名前 姓: 名:

[記入例]東京 太郎  最大各255文字

フリガナ セイ: メイ:

[記入例]トウキョウ タロウ  最大各255文字

電話番号

- -

(半角数字)[記入例]090-1234-5678  最大各4文字

メールアドレス

[記入例]sample@example.com  最大255文字

メールアドレス(再入力)
お問い合わせ内容

松岡品川埠頭ビル/仲介手数料無料のお部屋がありますの部屋を
お持ちのオーナー様へ

松岡品川埠頭ビル/仲介手数料無料のお部屋がありますの
予想売却価格

1億2500万円

1億3200万円

希望物件無料リクエスト こんなお悩みありませんか? 物件探しに時間が取れない方 最新物件・未掲載物件情報がほしい方 物件探しのプロにお任せ下さい! 無料リクエストはこちら

この物件の空き待ちをする お気に入り物件に登録

この物件の他の空室

間取り
専有面積
賃料
管理費
敷金
礼金
2F 66.12m² 15.4万円
2.2万円
10ヶ月
-
2F 79.34m² 18.48万円
2.64万円
10ヶ月
-

この物件に似ている物件

ページトップへ