フォトアルバム
| 賃料(@坪単価) (税抜) | ****(***) | 管理費(@坪単価) (税抜) | ****(***)(-) |
|---|---|---|---|
| 敷金(保証金) | *** | 礼金/償却 | ***/*** |
| 更新料 | *** | 仲介手数料 | *** |
| その他費用 | |||
| 所在地 | 東京都江東区牡丹1丁目15-5 | ||
| 交通 |
都営大江戸線/ 門前仲町 徒歩2分 京葉線/ 越中島 徒歩6分 東京メトロ東西線/ 木場 徒歩14分 |
||
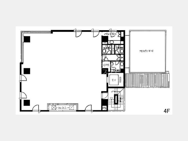
| 間取り | - | 間取り内訳 | |
| 平米数(坪数) | 171.50m² (51.88坪) | 契約形態/契約期間 | -/*** |
| 築年月(築年数) | 1993年03月(築32.6年) | 方位 | - |
| 建物構造 | SRC(鉄骨鉄筋コンクリート) | 所在階/階建 | *** / 9階建(B0階) |
| 総戸数 | - | 駐車場 | - |
| 引渡 | 即時 | 現況 | - |
| エレベーター | 1 基 | 空調 | 個別 |
| 床仕様 | OAフロア | トイレ | 男女別 |
| 給湯 | 有り | 楽器 | - |
| 設備・条件 | エレベーター、機械警備、1フロア1テナント、2階以上、礼金無し、即入居可、エアコン、男女別トイレ、OAフロア、仲介手数料無料 | ||
| 備考 | ☆共益費は賃料に含む | ||
| 周辺施設 | |||
| 物件番号 | 43939 | 取引態様 | 仲介 |
| 情報更新日 | *** | ||
Point STビルご関係者各位
日々物件更新に努めておりますが、募集終了や募集条件の変更等にお気付きになられた場合は、
大変お手数ですが掲載情報修正申請にお力添えのほどお願い申し上げます。












