| 賃料(@坪単価) (税抜) | ****(***) | 管理費(@坪単価) (税抜) | ****(***)(-) |
|---|---|---|---|
| 敷金(保証金) | *** | 礼金/償却 | ***/*** |
| 更新料 | *** | 仲介手数料 | *** |
| その他費用 | |||
| 所在地 | 東京都大田区西蒲田6丁目33-7 | ||
| 交通 |
東急池上線/ 蓮沼 徒歩3分 京浜東北線/ 蒲田 徒歩7分 東急多摩川線/ 矢口渡 徒歩14分 |
||
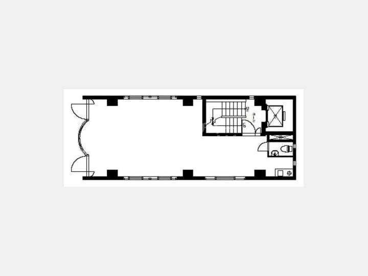
| 間取り | - | 間取り内訳 | |
| 平米数(坪数) | 55.86m² (16.90坪) | 契約形態/契約期間 | -/*** |
| 築年月(築年数) | 1992年01月(築33.9年) | 方位 | - |
| 建物構造 | RC(鉄筋コンクリート) | 所在階/階建 | *** / 6階建(B0階) |
| 総戸数 | - | 駐車場 | 空無 |
| 引渡 | 相談 | 現況 | - |
| エレベーター | 1 基 | 空調 | 個別 |
| 床仕様 | - | トイレ | - |
| 給湯 | - | 楽器 | - |
| 設備・条件 | エレベーター、2階以上、礼金無し、エアコン、敷金3ヶ月以下、仲介手数料無料 | ||
| 備考 | ・24時間使用可 ・光ファイバー対応 ・新耐震基準 ・引渡し状況:相談 |
||
| 周辺施設 | |||
| 物件番号 | 44738 | 取引態様 | 仲介 |
| 情報更新日 | *** | ||
第2田邊ビルご関係者各位
日々物件更新に努めておりますが、募集終了や募集条件の変更等にお気付きになられた場合は、
大変お手数ですが掲載情報修正申請にお力添えのほどお願い申し上げます。












