フォトアルバム
| 賃料(@坪単価) (税抜) | ****(***) | 管理費(@坪単価) (税抜) | ****(***)(@1,877円) |
|---|---|---|---|
| 敷金(保証金) | *** | 礼金/償却 | ***/*** |
| 更新料 | *** | 仲介手数料 | *** |
| その他費用 | 電気基本料金月額:***, | ||
| 所在地 | 東京都千代田区神田神保町2丁目16-2 | ||
| 交通 |
都営三田線/ 神保町 徒歩2分 中央・総武線/ 水道橋 徒歩7分 東京メトロ半蔵門線/ 九段下 徒歩7分 |
||
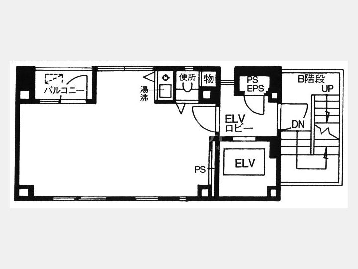
| 間取り | - | 間取り内訳 | |
| 平米数(坪数) | 31.71m² (9.59坪) | 契約形態/契約期間 | 普通借家/*** |
| 築年月(築年数) | 1985年04月(築40.7年) | 方位 | 東 |
| 建物構造 | 鉄骨造 | 所在階/階建 | *** / 6階建(B0階) |
| 総戸数 | - | 駐車場 | - |
| 引渡 | 2014年08月下旬 | 現況 | 空家 |
| エレベーター | 1 基 | 空調 | - |
| 床仕様 | - | トイレ | 洋式 |
| 給湯 | 有り | 楽器 | - |
| 設備・条件 | エレベーター、1フロア1テナント、2階以上、敷金3ヶ月以下 | ||
| 備考 | 更新事務手数料:新賃料の0.25ヶ月 | ||
| 周辺施設 | |||
| 物件番号 | 48130 | 取引態様 | 仲介 |
| 情報更新日 | *** | ||
4階部分の賃貸事務所物件です。
人気の1フロア1テナントですので、他のテナントと共有することなく利用できます。
3~4人規模のオフィス向けの広さです。
駅近で通勤に便利な立地ですので、ビジネスの拠点に最適です!
長方形で使い勝手の良い室内です。
担当者からのコメント
☆★【第5千代田ビル】内で、同じ間取で空室がある場合がございますので、お電話又はメールにてご連絡下さい★☆
第5千代田ビルご関係者各位
日々物件更新に努めておりますが、募集終了や募集条件の変更等にお気付きになられた場合は、
大変お手数ですが掲載情報修正申請にお力添えのほどお願い申し上げます。












