フォトアルバム
| 賃料(@坪単価) (税抜) | ****(***) | 管理費(@坪単価) (税抜) | ****(***)(@4,700円) |
|---|---|---|---|
| 敷金(保証金) | *** | 礼金/償却 | ***/*** |
| 更新料 | *** | 仲介手数料 | *** |
| その他費用 | |||
| 所在地 | 東京都千代田区神田駿河台1丁目8-11 | ||
| 交通 |
東京メトロ千代田線/ 新御茶ノ水 徒歩3分 中央・総武線/ 御茶ノ水 徒歩4分 都営三田線/ 神保町 徒歩6分 |
||
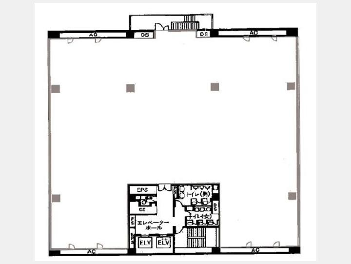
| 間取り | - | 間取り内訳 | |
| 平米数(坪数) | 730.70m² (221.03坪) | 契約形態/契約期間 | 普通借家/*** |
| 築年月(築年数) | 1990年02月(築35.8年) | 方位 | - |
| 建物構造 | SRC(鉄骨鉄筋コンクリート) | 所在階/階建 | *** / 8階建(B2階) |
| 総戸数 | - | 駐車場 | - |
| 引渡 | 即時 | 現況 | - |
| エレベーター | 2 基 | 空調 | セントラル空調 |
| 床仕様 | OAフロア | トイレ | 男女別 |
| 給湯 | - | 楽器 | - |
| 設備・条件 | エレベーター、2階以上、礼金無し、敷金無し、即入居可、エアコン、男女別トイレ、OAフロア、仲介手数料無料 | ||
| 備考 | ※非営利団体限定区画※ | ||
| 周辺施設 | |||
| 物件番号 | 53288 | 取引態様 | 仲介 |
| 情報更新日 | *** | ||
4階部分約730㎡の貸事務所です。100人~110人規模の広さのオフィスです。
複数駅・複数路線が利用できるアクセス抜群の物件です。
レイアウトのしやすい作りで、さまざまな事業に対応可能です。
24時間使用可能+機械警備システム導入済でセキュリティ面も安心の物件です。
飲食店も充実しているのでランチにも便利です。
OAフロア、光ファイバー、セントラル空調、男女別トイレなどの設備がありますので、快適にご利用頂けると思います。
☆★仲介手数料無料★☆
☆☆入居時の条件交渉はお任せください☆☆
担当者からのコメント
☆★【東京YWCA会館】内で、同じ間取で空室がある場合がございますので、お電話又はメールにてご連絡下さい★☆
東京YWCA会館/仲介手数料無料ご関係者各位
日々物件更新に努めておりますが、募集終了や募集条件の変更等にお気付きになられた場合は、
大変お手数ですが掲載情報修正申請にお力添えのほどお願い申し上げます。












