フォトアルバム
| 賃料(@坪単価) (税抜) | ****(***) | 管理費(@坪単価) (税抜) | ****(***)(-) |
|---|---|---|---|
| 敷金(保証金) | *** | 礼金/償却 | ***/*** |
| 更新料 | *** | 仲介手数料 | *** |
| その他費用 | |||
| 所在地 | 東京都港区三田3丁目2-3 | ||
| 交通 |
都営浅草線/ 三田 徒歩5分 山手線/ 田町 徒歩7分 都営三田線/ 白金高輪 徒歩11分 |
||
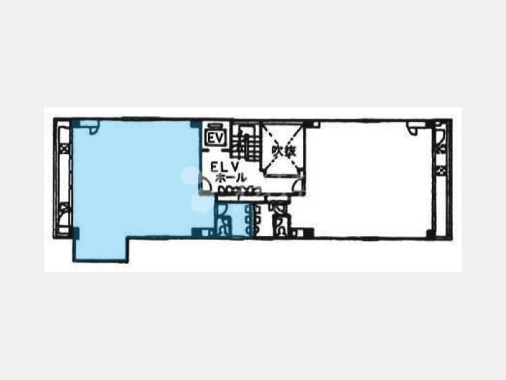
| 間取り | - | 間取り内訳 | |
| 平米数(坪数) | 94.06m² (28.45坪) | 契約形態/契約期間 | 普通借家/*** |
| 築年月(築年数) | 1985年04月(築40.5年) | 方位 | - |
| 建物構造 | SRC(鉄骨鉄筋コンクリート) | 所在階/階建 | *** / 8階建(B0階) |
| 総戸数 | - | 駐車場 | - |
| 引渡 | 即時 | 現況 | 空家 |
| エレベーター | 1 基 | 空調 | 個別 |
| 床仕様 | - | トイレ | 男女別 |
| 給湯 | - | 楽器 | - |
| 設備・条件 | エレベーター、角部屋、2階以上、礼金無し、即入居可、エアコン、男女別トイレ | ||
| 備考 | 火災保険要加入 | ||
| 周辺施設 | |||
| 物件番号 | 57169 | 取引態様 | 仲介 |
| 情報更新日 | *** | ||
5階部分の賃貸事務所物件です。
12~14人規模のオフィス向けの広さです。
複数路線余裕の徒歩圏内!
光ファイバー、個別空調などの設備がありますので、快適にご利用頂けると思います。
メインとなる事務所スペースは長方形で使い勝手良好です!
担当者からのコメント
☆★【万代三田ビル】内で、同じ間取で空室がある場合がございますので、お電話又はメールにてご連絡下さい★☆
万代三田ビル/仲介手数料無料のお部屋がありますご関係者各位
日々物件更新に努めておりますが、募集終了や募集条件の変更等にお気付きになられた場合は、
大変お手数ですが掲載情報修正申請にお力添えのほどお願い申し上げます。












