フォトアルバム
301室内写真1【大久保ビル】
301室内写真2【大久保ビル】
301トイレ【大久保ビル】
301浴室【大久保ビル】
301防水パン【大久保ビル】
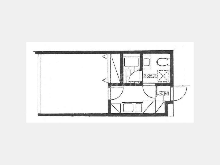
301間取り図【大久保ビル】
| 賃料(@坪単価) (税抜) | ****(***) | 管理費(@坪単価) (税抜) | ****(***)(@1,067円) |
|---|---|---|---|
| 敷金(保証金) | *** | 礼金/償却 | ***/*** |
| 更新料 | *** | 仲介手数料 | *** |
| その他費用 | 火災保険:***, | ||
| 所在地 | 東京都渋谷区宇田川町37-11 | ||
| 交通 |
東急田園都市線/ 渋谷 徒歩6分 山手線/ 渋谷 徒歩8分 東京メトロ千代田線/ 明治神宮前 徒歩15分 |
||
| 間取り | 1K | 間取り内訳 |
洋室 7.5 畳 3 階 1 室 K 3 畳 3 階 1 室 |
| 平米数(坪数) | 24.81m² (7.50坪) | 契約形態/契約期間 | 普通借家/*** |
| 築年月(築年数) | 2007年07月(築18.4年) | 方位 | 西 |
| 建物構造 | SRC(鉄骨鉄筋コンクリート) | 所在階/階建 | *** / 6階建(B1階) |
| 総戸数 | - | 駐車場 | - |
| 引渡 | 相談 | 現況 | 空家 |
| エレベーター | 1 基 | 空調 | 個別 |
| 床仕様 | フローリング | トイレ | 洋式 |
| 給湯 | 有り | 楽器 | - |
| 設備・条件 | オートロック、1階がカフェ、1階がコンビニ、エレベーター、バス・トイレ別、室内洗濯機置き場、シャワー付き、2階以上、エアコン、敷金3ヶ月以下 | ||
| 備考 | |||
| 周辺施設 | |||
| 物件番号 | 58667 | 取引態様 | 仲介 |
| 情報更新日 | *** | ||
3階部分の賃貸マンションです!事務所利用可能♪
2~3名用のコンパクトオフィス。開業時にお薦めの物件です。
冷暖房完備なので快適にお仕事をしていただけます!
キッチンつきなので、来客へのお茶の準備はもちろん、ちょっとしたお料理も作れます。
安心のオートロック&TVモニターフォン!
担当者からのコメント
☆★【大久保ビル】内で、空室がある場合がございますので、お電話又はメールにてご連絡下さい★☆
大久保ビルご関係者各位
日々物件更新に努めておりますが、募集終了や募集条件の変更等にお気付きになられた場合は、
大変お手数ですが掲載情報修正申請にお力添えのほどお願い申し上げます。












