フォトアルバム
| 賃料(@坪単価) (税抜) | ****(***) | 管理費(@坪単価) (税抜) | ****(***)(-) |
|---|---|---|---|
| 敷金(保証金) | *** | 礼金/償却 | ***/*** |
| 更新料 | *** | 仲介手数料 | *** |
| その他費用 | |||
| 所在地 | 東京都千代田区外神田5丁目2-11 | ||
| 交通 |
東京メトロ銀座線/ 末広町 徒歩4分 山手線/ 御徒町 徒歩7分 都営大江戸線/ 上野御徒町 徒歩8分 |
||
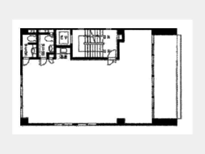
| 間取り | - | 間取り内訳 | |
| 平米数(坪数) | 97.53m² (29.50坪) | 契約形態/契約期間 | 普通借家/*** |
| 築年月(築年数) | 1973年07月(築52.4年) | 方位 | - |
| 建物構造 | SRC(鉄骨鉄筋コンクリート) | 所在階/階建 | *** / 7階建(B0階) |
| 総戸数 | - | 駐車場 | - |
| 引渡 | 相談 | 現況 | - |
| エレベーター | 1 基 | 空調 | 個別 |
| 床仕様 | - | トイレ | 男女別 |
| 給湯 | 有り | 楽器 | - |
| 設備・条件 | オートロック、エレベーター、1フロア1テナント、2階以上、礼金無し、エアコン、男女別トイレ | ||
| 備考 | |||
| 周辺施設 | |||
| 物件番号 | 64941 | 取引態様 | 仲介 |
| 情報更新日 | *** | ||
5階部分の賃貸事務所物件です。
14~15名規模の賃貸事務所物件です。
人気の1フロア1テナントですので、他のテナントと共有することなく充実した設備が利用できます。
バルコニー付の、明るい空間☆
駅近で通勤に便利な立地ですので、ビジネスの拠点に最適です!
女性に嬉しい男女別トイレ付☆
冷暖房完備なので快適にお仕事をしていただけます!
担当者からのコメント
![]()
スマートフォンをご利用の方は友達追加をして頂ければLINEでのやり取りができます。
【セイキ第2ビル】内で空室はある?条件交渉はできる?等のご質問がございましたらお気軽にお問合せ下さい。
セイキ第二ビルご関係者各位
日々物件更新に努めておりますが、募集終了や募集条件の変更等にお気付きになられた場合は、
大変お手数ですが掲載情報修正申請にお力添えのほどお願い申し上げます。












