フォトアルバム
室内【新宿ダイカンプラザシティ】
キッチン【新宿ダイカンプラザシティ】
玄関【新宿ダイカンプラザシティ】
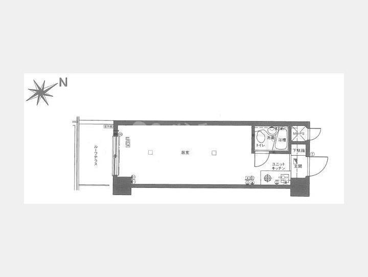
403 間取り図【新宿ダイカンプラザシティ】
| 賃料(@坪単価) (税抜) | ****(***) | 管理費(@坪単価) (税抜) | ****(***)(@1,500円) |
|---|---|---|---|
| 敷金(保証金) | *** | 礼金/償却 | ***/*** |
| 更新料 | *** | 仲介手数料 | *** |
| その他費用 | 火災保険2年:***, 給湯基本料:***, 鍵交換代金:***, | ||
| 所在地 | 東京都新宿区西新宿7丁目19-22 | ||
| 交通 |
東京メトロ丸ノ内線/ 新宿 徒歩5分 都営大江戸線/ 新宿西口 徒歩4分 山手線/ 新宿 徒歩8分 |
||
| 間取り | 1R | 間取り内訳 |
洋室 8 畳 ルーフテラスあり4.05㎡ |
| 平米数(坪数) | 21.58m² (6.52坪) | 契約形態/契約期間 | 普通借家/*** |
| 築年月(築年数) | 1983年09月(築42.1年) | 方位 | 南西 |
| 建物構造 | SRC(鉄骨鉄筋コンクリート) | 所在階/階建 | *** / 8階建(B0階) |
| 総戸数 | - | 駐車場 | - |
| 引渡 | 即時 | 現況 | 空家 |
| エレベーター | 1 基 | 空調 | 個別 |
| 床仕様 | - | トイレ | 洋式 |
| 給湯 | 有り | 楽器 | - |
| 設備・条件 | エレベーター、分譲賃貸、シャワー付き、2階以上、礼金無し、即入居可、エアコン、敷金3ヶ月以下 | ||
| 備考 | ・事務所利用の場合:敷金3ヶ月 | ||
| 周辺施設 | |||
| 物件番号 | 67744 | 取引態様 | 仲介 |
| 情報更新日 | *** | ||
4階部分、約21㎡の賃貸マンション物件です。
SOHOの場合、2~3人向けのオフィスに最適です。
使いやすくレイアウトしやすい1Rタイプのお部屋です。
エアコン、冷蔵庫、照明器具付きで入居後すぐにお使いいただけます♪
マンション内にはコインランドリーがございます。
☆★事務所利用可能物件です★☆
☆☆入居時の条件交渉はお任せ下さい☆☆
担当者からのコメント
☆★【新宿ダイカンプラザシティ】内で、同じ間取で空室がある場合がございますので、お電話又はメールにてご連絡下さい★☆
新宿ダイカンプラザシティご関係者各位
日々物件更新に努めておりますが、募集終了や募集条件の変更等にお気付きになられた場合は、
大変お手数ですが掲載情報修正申請にお力添えのほどお願い申し上げます。












