フォトアルバム
| 賃料(@坪単価) (税抜) | ****(***) | 管理費(@坪単価) (税抜) | ****(***)(@474円) |
|---|---|---|---|
| 敷金(保証金) | *** | 礼金/償却 | ***/*** |
| 更新料 | *** | 仲介手数料 | *** |
| その他費用 | |||
| 所在地 | 東京都新宿区信濃町3 | ||
| 交通 |
東京メトロ丸ノ内線/ 四谷三丁目 徒歩6分 中央・総武線/ 信濃町 徒歩7分 都営大江戸線/ 国立競技場 徒歩10分 |
||
| 間取り | - | 間取り内訳 | |
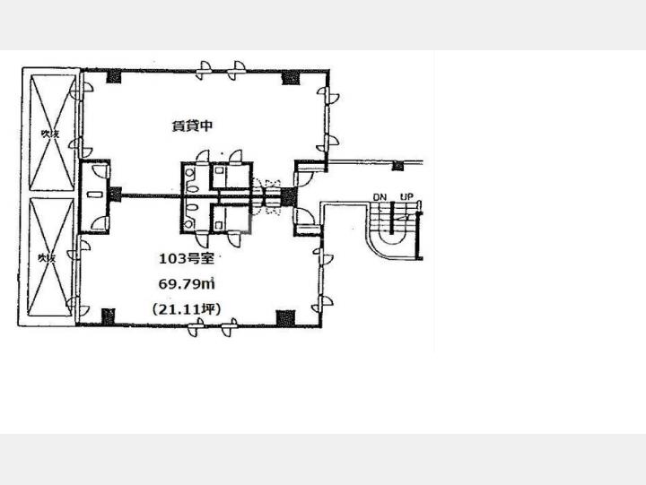
| 平米数(坪数) | 69.79m² (21.11坪) | 契約形態/契約期間 | 普通借家/*** |
| 築年月(築年数) | 1990年06月(築35.4年) | 方位 | 北 |
| 建物構造 | RC(鉄筋コンクリート) | 所在階/階建 | *** / 5階建(B0階) |
| 総戸数 | - | 駐車場 |
空有 -台/
- キャンペーン中につき賃料に含む |
| 引渡 | 2015年12月中旬 | 現況 | 居住中 |
| エレベーター | 1 基 | 空調 | 個別 |
| 床仕様 | フローリング | トイレ | 洋式 |
| 給湯 | 有り | 楽器 | - |
| 設備・条件 | オートロック、TVドアホン、駐輪場、エレベーター、角部屋、1階、駐車場あり、エアコン、敷金3ヶ月以下 | ||
| 備考 | 火災保険要加入 保証会社利用相談 |
||
| 周辺施設 | |||
| 物件番号 | 69385 | 取引態様 | 仲介 |
| 情報更新日 | *** | ||
1階部分、103号室の賃貸事務所物件です。
9~10名規模のオフィスタイプです。
駅近で通勤に便利な立地ですので、ビジネスの拠点に最適です!
冷暖房完備、専用トイレ、給湯室付なので快適にお仕事をしていただけます!
担当者からのコメント
☆★【エスコート】内で、同じ間取で空室がある場合がございますので、お電話又はメールにてご連絡下さい★☆
エスコート(S・COURT)ご関係者各位
日々物件更新に努めておりますが、募集終了や募集条件の変更等にお気付きになられた場合は、
大変お手数ですが掲載情報修正申請にお力添えのほどお願い申し上げます。












