更新 松岡セントラルビルの賃貸オフィス、貸事務所物件情報

所在地
交通
賃料(@坪単価) (税抜)
管理費(@坪単価) (税抜)
敷金(保証金)
礼金
償却
仲介手数料
間取り
平米数(坪数)
物件種別
築年数
方位
構造
所在階/階建
総戸数
東京都新宿区西新宿1丁目7-1
山手線/ 新宿  徒歩1分
1,055,200円 (@29,749円)
195,415円 (@5,509円)
10ヶ月
-
-
一律
-
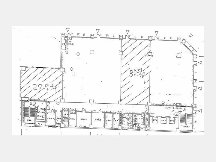
117.24m² (35.47坪)
賃貸事務所・賃貸オフィス,店舗
1969年12月
(築55年)
-
SRC(鉄骨鉄筋コンクリート)
3階 / 9階建-
-

フォトアルバム

外観 【松岡セントラルビル】

外観 【松岡セントラルビル】

外観 【松岡セントラルビル】

外観 【松岡セントラルビル】

外観 【松岡セントラルビル】

外観 【松岡セントラルビル】

外観 【松岡セントラルビル】

外観 【松岡セントラルビル】

入口 【松岡セントラルビル】

入口 【松岡セントラルビル】

エレベーター 【松岡セントラルビル】

エレベーター 【松岡セントラルビル】

社名案内板 【松岡セントラルビル】

社名案内板 【松岡セントラルビル】

前の写真次の写真

賃料(@坪単価) (税抜) 1,055,200円 (@29,749円) 管理費(@坪単価) (税抜) 195,415円 (@5,509円)
敷金(保証金) 10ヶ月 礼金/償却 -/-
更新料 - 仲介手数料 一律
その他費用
所在地 東京都新宿区西新宿1丁目7-1
交通 山手線/ 新宿  徒歩1分
間取り - 間取り内訳
平米数(坪数) 117.24m² (35.47坪) 契約形態/契約期間 定期借家/5年
築年月(築年数) 1969年12月(築55年) 方位 -
建物構造 SRC(鉄骨鉄筋コンクリート) 所在階/階建 3階 / 9階建-
総戸数 - 駐車場 -
引渡 即時 現況 空家
エレベーター - 空調 -
床仕様 - トイレ -
給湯 - 楽器 -
設備・条件 保証人不要、2階以上、即入居可
備考
周辺施設
物件番号 750418 取引態様 媒介
情報更新日 2025年10月06日

この物件に関するご相談・お問い合わせはこちら 受付時間 10:00〜19:00 050-3033-5986

この物件を問い合わせる

松岡セントラルビルご関係者各位

日々物件更新に努めておりますが、募集終了や募集条件の変更等にお気付きになられた場合は、
大変お手数ですが掲載情報修正申請にお力添えのほどお願い申し上げます。

問い合わせ

は、必須入力項目です。

会社名
(個人事業主様はお名前をご入力下さい。)
お名前 姓: 名:

[記入例]東京 太郎  最大各255文字

フリガナ セイ: メイ:

[記入例]トウキョウ タロウ  最大各255文字

電話番号

- -

(半角数字)[記入例]090-1234-5678  最大各4文字

メールアドレス

[記入例]sample@example.com  最大255文字

メールアドレス(再入力)
お問い合わせ内容

松岡セントラルビルの部屋を
お持ちのオーナー様へ

松岡セントラルビルの
予想売却価格

1億2500万円

1億3200万円

希望物件無料リクエスト こんなお悩みありませんか? 物件探しに時間が取れない方 最新物件・未掲載物件情報がほしい方 物件探しのプロにお任せ下さい! 無料リクエストはこちら

この物件を問い合わせる お気に入り物件に登録

この物件の他の空室

間取り
専有面積
賃料
管理費
敷金
礼金
3F 92.23m² 76.72万円
15.345万円
10ヶ月
-
3F 92.23m² 76.72万円
15.345万円
10ヶ月
-
3F 92.23m² 76.72万円
15.345万円
10ヶ月
-
3F 92.07m² 76.72万円
15.345万円
10ヶ月
-
3F 92.23m² 76.72万円
15.345万円
10ヶ月
-
3F 92.23m² 76.72万円
15.345万円
10ヶ月
-
3F 92.23m² 76.73万円
15.345万円
10ヶ月
-
3F 92.23m² 76.73万円
15.345万円
10ヶ月
-
3F 92.23m² 83.7万円
-
10ヶ月
-
3F 92.24m² 92.07万円
15.345万円
10ヶ月
-
3F 92.23m² 92.07万円
15.345万円
10ヶ月
-
3F 117.45m² 105.52万円
19.5414万円
10ヶ月
-
3F 117.45m² 105.52万円
19.5415万円
10ヶ月
-
3F 117.45m² 105.52万円
19.5415万円
10ヶ月
-
3F 117.45m² 105.52万円
19.5415万円
10ヶ月
-
3F 117.45m² 105.52万円
19.5415万円
10ヶ月
-
3F 117.45m² 105.52万円
19.5415万円
10ヶ月
-
3F 117.44m² 105.52万円
19.5415万円
10ヶ月
-
3F 117.45m² 105.53万円
19.5415万円
10ヶ月
-
3F 117.45m² 105.53万円
19.5415万円
10ヶ月
-
3F 117.45m² 106.59万円
-
10ヶ月
-
3F 117.45m² 117.24万円
19.5415万円
10ヶ月
-
3F 209.68m² 182.24万円
34.8865万円
10ヶ月
-
3F 209.68m² 182.24万円
34.8865万円
10ヶ月
-

この物件に似ている物件

ページトップへ