ストーク四谷[満室]の賃貸オフィス、貸事務所物件情報

本情報は過去に掲載された物件の参考情報です。 最新の物件情報など詳細につきましてはお気軽にお問合せください。

所在地
交通
賃料(@坪単価) (税抜)
管理費(@坪単価) (税抜)
敷金(保証金)
礼金
償却
仲介手数料
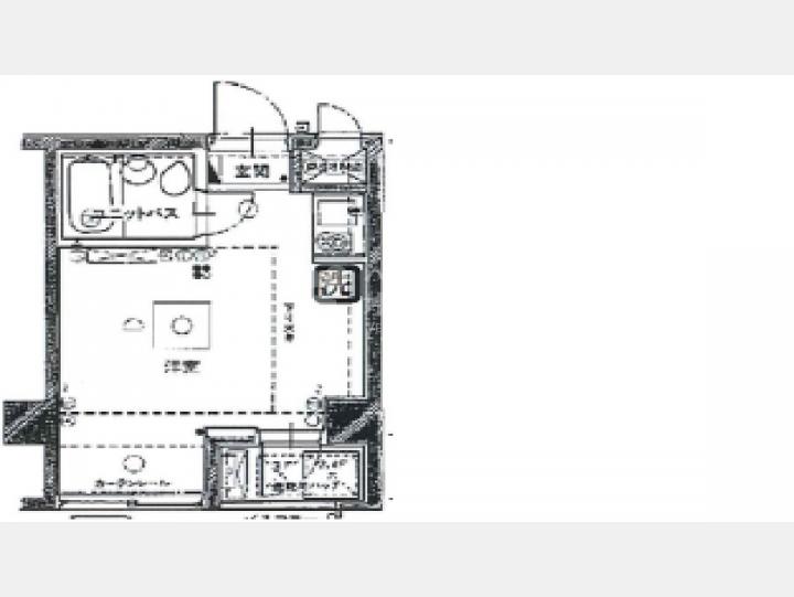
間取り
平米数(坪数)
物件種別
築年数
方位
構造
所在階/階建
総戸数
東京都新宿区坂町24-5
都営新宿線/ 曙橋  徒歩4分
中央・総武線/ 市ケ谷  徒歩13分
東京メトロ丸ノ内線/ 四谷三丁目  徒歩9分
****(***)
****(***) (@893円)
***/***
***
***
***
1R
18.52m² (5.60坪)
SOHOマンション(事務所可マンション)
1984年05月
(築41.4年)
北向き
RC(鉄筋コンクリート)
***/ 6階建(B0階)
0戸

賃料(@坪単価) (税抜) ****(***) 管理費(@坪単価) (税抜) ****(***)(@893円)
敷金(保証金) *** 礼金/償却 ***/***
更新料 *** 仲介手数料 ***
その他費用 火災保険(2年間):***, 鍵交換代(税別):***, 24時間サポート加入(税別):***,
所在地 東京都新宿区坂町24-5
交通 都営新宿線/ 曙橋  徒歩4分
中央・総武線/ 市ケ谷  徒歩13分
東京メトロ丸ノ内線/ 四谷三丁目  徒歩9分
間取り 1R 間取り内訳 K 洋室
平米数(坪数) 18.52m² (5.60坪) 契約形態/契約期間 普通借家/***
築年月(築年数) 1984年05月(築41.4年) 方位
建物構造 RC(鉄筋コンクリート) 所在階/階建 *** / 6階建(B0階)
総戸数 - 駐車場
引渡 2016年05月下旬 現況 空家
エレベーター 1 基 空調 個別
床仕様 クッションフロア トイレ 洋式
給湯 有り 楽器 -
設備・条件 エレベーター、室内洗濯機置き場、分譲賃貸、シャワー付き、2階以上、エアコン、敷金一ヶ月、敷金3ヶ月以下
備考 ・ハウスクリーニング負担特約あり
周辺施設
物件番号 77088 取引態様 仲介
情報更新日 ***

3階部分、306号室の分譲賃貸マンションです。事務所利用可!
複数路線余裕の徒歩圏内!
2~3名規模のオフィス向けの広さです。
日当たり良好♪明るい室内です!
システムキッチン付なので、来客時のお茶出しはもちろん、お料理も作れます。
モニター付インターホン、オートロックで、セキュリティ面も安心です。
エアコン付で、快適にお過ごし頂けます。

この物件に関するご相談・お問い合わせはこちら 受付時間 10:00〜19:00 050-3033-5986

この物件を空き待ちする

担当者からのコメント

☆★【ストーク四谷】内で、同じ間取で空室がある場合がございますので、お電話又はメールにてご連絡下さい★☆

ストーク四谷ご関係者各位

日々物件更新に努めておりますが、募集終了や募集条件の変更等にお気付きになられた場合は、
大変お手数ですが掲載情報修正申請にお力添えのほどお願い申し上げます。

問い合わせ

は、必須入力項目です。

会社名
(個人事業主様はお名前をご入力下さい。)
お名前 姓: 名:

[記入例]東京 太郎  最大各255文字

フリガナ セイ: メイ:

[記入例]トウキョウ タロウ  最大各255文字

電話番号

- -

(半角数字)[記入例]090-1234-5678  最大各4文字

メールアドレス

[記入例]sample@example.com  最大255文字

メールアドレス(再入力)
お問い合わせ内容

ストーク四谷の部屋を
お持ちのオーナー様へ

ストーク四谷の
予想売却価格

1億2500万円

1億3200万円

希望物件無料リクエスト こんなお悩みありませんか? 物件探しに時間が取れない方 最新物件・未掲載物件情報がほしい方 物件探しのプロにお任せ下さい! 無料リクエストはこちら

この物件の空き待ちをする お気に入り物件に登録

この物件に似ている物件

ページトップへ