フォトアルバム
| 賃料(@坪単価) (税抜) | ****(***) | 管理費(@坪単価) (税抜) | ****(***)(-) |
|---|---|---|---|
| 敷金(保証金) | *** | 礼金/償却 | ***/*** |
| 更新料 | *** | 仲介手数料 | *** |
| その他費用 | |||
| 所在地 | 東京都中央区八丁堀4丁目13-5 | ||
| 交通 |
京葉線/ 八丁堀 徒歩1分 東京メトロ日比谷線/ 茅場町 徒歩7分 東京メトロ有楽町線/ 新富町 徒歩9分 |
||
| 間取り | - | 間取り内訳 | |
| 平米数(坪数) | 112.53m² (34.04坪) | 契約形態/契約期間 | 普通借家/*** |
| 築年月(築年数) | 1991年03月(築34.7年) | 方位 | - |
| 建物構造 | SRC(鉄骨鉄筋コンクリート) | 所在階/階建 | *** / 9階建(B1階) |
| 総戸数 | - | 駐車場 | - |
| 引渡 | 2016年09月中旬 | 現況 | - |
| エレベーター | 1 基 | 空調 | - |
| 床仕様 | - | トイレ | 男女別 |
| 給湯 | 有り | 楽器 | - |
| 設備・条件 | エレベーター、1フロア1テナント、2階以上、礼金無し、男女別トイレ | ||
| 備考 | |||
| 周辺施設 | |||
| 物件番号 | 77937 | 取引態様 | 仲介 |
| 情報更新日 | *** | ||
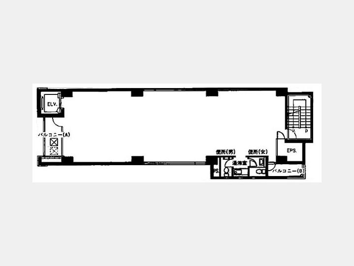
3階部分1フロア1テナントの賃貸事務所物件です。
13~16人規模のオフィス向けの広さです。
男女別トイレで、快適にご利用頂けると思います。
長方形で、水回りが一箇所に集中しているのでレイアウトしやすい空間です。
駅近で通勤に便利な立地ですので、ビジネスの拠点に最適です!
☆☆入居時の条件交渉はお任せください☆☆
担当者からのコメント
☆★【幸ビル】内で、同じ間取で空室がある場合がございますので、お電話又はメールにてご連絡下さい★☆
幸ビル/仲介手数料無料ご関係者各位
日々物件更新に努めておりますが、募集終了や募集条件の変更等にお気付きになられた場合は、
大変お手数ですが掲載情報修正申請にお力添えのほどお願い申し上げます。












