フォトアルバム
| 賃料(@坪単価) (税抜) | ****(***) | 管理費(@坪単価) (税抜) | ****(***)(@1,500円) |
|---|---|---|---|
| 敷金(保証金) | *** | 礼金/償却 | ***/*** |
| 更新料 | *** | 仲介手数料 | *** |
| その他費用 | |||
| 所在地 | 東京都千代田区内神田3丁目2-3 | ||
| 交通 |
山手線/ 神田 徒歩3分 東京メトロ半蔵門線/ 大手町 徒歩6分 東京メトロ丸ノ内線/ 淡路町 徒歩10分 |
||
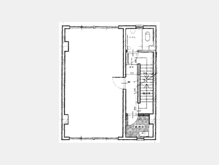
| 間取り | - | 間取り内訳 | |
| 平米数(坪数) | 35.31m² (10.68坪) | 契約形態/契約期間 | 普通借家/*** |
| 築年月(築年数) | 1965年10月(築60.1年) | 方位 | - |
| 建物構造 | 鉄骨造 | 所在階/階建 | *** / 5階建(B0階) |
| 総戸数 | - | 駐車場 | - |
| 引渡 | 2019年02月中旬 | 現況 | 居住中 |
| エレベーター | - | 空調 | 個別 |
| 床仕様 | - | トイレ | 和式 |
| 給湯 | 有り | 楽器 | - |
| 設備・条件 | 1フロア1テナント、2階以上、礼金無し、エアコン | ||
| 備考 | |||
| 周辺施設 | |||
| 物件番号 | 78359 | 取引態様 | 仲介 |
| 情報更新日 | *** | ||
3階部分の賃貸事務所物件です。
4~5人規模のオフィス向けの広さです。
1フロア1テナントなので、他のテナントと共有することなくお使いいただけます。
長方形で、水回りが事務所スペースの外にありますので、オフィス内を有効活用できます。
冷暖房完備なので快適にお仕事をしていただけます!
駅近で通勤に便利な立地ですので、ビジネスの拠点に最適です!
担当者からのコメント
☆★【神田鎌倉ビル】内で、同じ間取で空室がある場合がございますので、お電話又はメールにてご連絡下さい★☆
神田鎌倉ビルご関係者各位
日々物件更新に努めておりますが、募集終了や募集条件の変更等にお気付きになられた場合は、
大変お手数ですが掲載情報修正申請にお力添えのほどお願い申し上げます。












