フォトアルバム
室内写真イメージ 【ベルメゾン池袋】
室内写真イメージ 【ベルメゾン池袋】
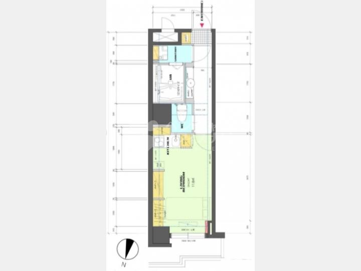
間取り図【ベルメゾン池袋】
| 賃料(@坪単価) (税抜) | ****(***) | 管理費(@坪単価) (税抜) | ****(***)(@1,308円) |
|---|---|---|---|
| 敷金(保証金) | *** | 礼金/償却 | ***/*** |
| 更新料 | *** | 仲介手数料 | *** |
| その他費用 | 指定家財保険:***, 鍵交換費用(税別):***, 事務手数料(税別):***, | ||
| 所在地 | 東京都豊島区池袋1丁目2-6 | ||
| 交通 |
山手線/ 池袋 徒歩4分 東京メトロ有楽町線/ 要町 徒歩14分 東武東上線/ 北池袋 徒歩15分 |
||
| 間取り | 1K | 間取り内訳 |
洋室 8 畳 |
| 平米数(坪数) | 25.30m² (7.65坪) | 契約形態/契約期間 | 普通借家/*** |
| 築年月(築年数) | 1986年01月(築39.9年) | 方位 | 北 |
| 建物構造 | SRC(鉄骨鉄筋コンクリート) | 所在階/階建 | *** / 10階建(B0階) |
| 総戸数 | - | 駐車場 | 無 |
| 引渡 | 即時 | 現況 | 空家 |
| エレベーター | 2 基 | 空調 | 個別 |
| 床仕様 | フローリング | トイレ | 洋式 |
| 給湯 | 有り | 楽器 | - |
| 設備・条件 | オートロック、TVドアホン、エレベーター、機械警備、バス・トイレ別、室内洗濯機置き場、分譲賃貸、リノベーション、2階以上、敷金無し、即入居可、エアコン | ||
| 備考 | 保証会社利用:賃料管理費合計の0.5ヶ月分~ 短期解約1年以内は賃料1ヶ月分の違約金 個人のお客様は口座引き落とし216円/月 更新時事務手数料10000円(税別) |
||
| 周辺施設 | |||
| 物件番号 | 79370 | 取引態様 | 仲介 |
| 情報更新日 | *** | ||
3階部分の賃貸マンションです!事務所利用可能♪
フルリノベーション済みのデザイナーズ物件!
トイレ・ユニットバス・キッチン・洗面台新規交換・設置で綺麗な水回り!
SOHO利用に適したコンパクトなお部屋です。
収納が充実していますのでスペースを有効利用できます。
冷暖房完備なので快適にお仕事をしていただけます!
担当者からのコメント
![]()
スマートフォンをご利用の方は友達追加をして頂ければLINEでのやり取りができます。
【ベルメゾン池袋】内で空室はある?条件交渉はできる?等のご質問がございましたらお気軽にお問合せ下さい。
ベルメゾン池袋ご関係者各位
日々物件更新に努めておりますが、募集終了や募集条件の変更等にお気付きになられた場合は、
大変お手数ですが掲載情報修正申請にお力添えのほどお願い申し上げます。












