小野商ビル[満室]の賃貸オフィス、貸事務所物件情報

本情報は過去に掲載された物件の参考情報です。 最新の物件情報など詳細につきましてはお気軽にお問合せください。

所在地
交通
賃料(@坪単価) (税抜)
管理費(@坪単価) (税抜)
敷金(保証金)
礼金
償却
仲介手数料
間取り
平米数(坪数)
物件種別
築年数
方位
構造
所在階/階建
総戸数
東京都中央区銀座8丁目12-6
都営大江戸線/ 汐留  徒歩4分
山手線/ 新橋  徒歩7分
東京メトロ銀座線/ 銀座  徒歩7分
****(***)
****(***) (@2,223円)
***/***
***
***
***
-
29.75m² (9.00坪)
賃貸事務所・賃貸オフィス
1961年01月
(築64.8年)
-
SRC(鉄骨鉄筋コンクリート)
***/ 8階建(B1階)
0戸

フォトアルバム

外観【小野商ビル】

外観【小野商ビル】

外観【小野商ビル】

外観【小野商ビル】

外観【小野商ビル】

外観【小野商ビル】

外観【小野商ビル】

外観【小野商ビル】

外観【小野商ビル】

外観【小野商ビル】

外観【小野商ビル】

外観【小野商ビル】

外観【小野商ビル】

外観【小野商ビル】

入口周辺【小野商ビル】

入口周辺【小野商ビル】

入口周辺【小野商ビル】

入口周辺【小野商ビル】

入口【小野商ビル】

入口【小野商ビル】

メールボックス【小野商ビル】

メールボックス【小野商ビル】

エレベーター【小野商ビル】

エレベーター【小野商ビル】

共用部通路【小野商ビル】

共用部通路【小野商ビル】

前面道路【小野商ビル】

前面道路【小野商ビル】

前面道路【小野商ビル】

前面道路【小野商ビル】

前の写真次の写真

賃料(@坪単価) (税抜) ****(***) 管理費(@坪単価) (税抜) ****(***)(@2,223円)
敷金(保証金) *** 礼金/償却 ***/***
更新料 *** 仲介手数料 ***
その他費用
所在地 東京都中央区銀座8丁目12-6
交通 都営大江戸線/ 汐留  徒歩4分
山手線/ 新橋  徒歩7分
東京メトロ銀座線/ 銀座  徒歩7分
間取り - 間取り内訳
平米数(坪数) 29.75m² (9.00坪) 契約形態/契約期間 -/***
築年月(築年数) 1961年01月(築64.8年) 方位 -
建物構造 SRC(鉄骨鉄筋コンクリート) 所在階/階建 *** / 8階建(B1階)
総戸数 - 駐車場 -
引渡 相談 現況 -
エレベーター 1 基 空調 個別
床仕様 - トイレ 共用
給湯 有り 楽器 -
設備・条件 オートロック、エレベーター、2階以上、礼金無し、エアコン
備考
周辺施設
物件番号 80033 取引態様 仲介
情報更新日 ***

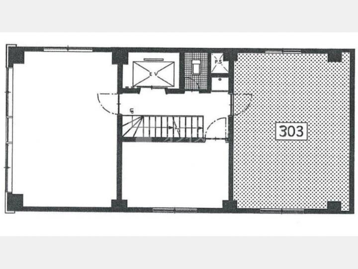
3階部分の賃貸事務所物件です。
2~4人規模のオフィス向けの広さです。
複数路線にアクセスしやすい立地ですので、ビジネスの拠点に最適です!
長方形でレイアウトしやすい空間です。
光ファイバー対応!
冷暖房完備なので快適にお仕事をしていただけます!

☆☆入居時の条件交渉はお任せください☆☆

この物件に関するご相談・お問い合わせはこちら 受付時間 10:00〜19:00 050-3033-5986

この物件を空き待ちする

担当者からのコメント

友だち追加
スマートフォンをご利用の方は友達追加をして頂ければLINEでのやり取りができます。
【小野商ビル】内で空室はある?条件交渉はできる?等のご質問がございましたらお気軽にお問合せ下さい。

小野商ビルご関係者各位

日々物件更新に努めておりますが、募集終了や募集条件の変更等にお気付きになられた場合は、
大変お手数ですが掲載情報修正申請にお力添えのほどお願い申し上げます。

問い合わせ

は、必須入力項目です。

会社名
(個人事業主様はお名前をご入力下さい。)
お名前 姓: 名:

[記入例]東京 太郎  最大各255文字

フリガナ セイ: メイ:

[記入例]トウキョウ タロウ  最大各255文字

電話番号

- -

(半角数字)[記入例]090-1234-5678  最大各4文字

メールアドレス

[記入例]sample@example.com  最大255文字

メールアドレス(再入力)
お問い合わせ内容

小野商ビルの部屋を
お持ちのオーナー様へ

小野商ビルの
予想売却価格

1億2500万円

1億3200万円

希望物件無料リクエスト こんなお悩みありませんか? 物件探しに時間が取れない方 最新物件・未掲載物件情報がほしい方 物件探しのプロにお任せ下さい! 無料リクエストはこちら

この物件の空き待ちをする お気に入り物件に登録

この物件の他の空室

間取り
専有面積
賃料
管理費
敷金
礼金
7F 29.75m² 16.5万円
3.3万円
90万円
-

この物件に似ている物件

ページトップへ