フォトアルバム

410室内写真【朝日三番町プラザ】

410室内写真【朝日三番町プラザ】

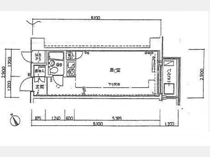
410間取図 【朝日三番町プラザ】
賃料(@坪単価) (税抜) | ****(***) | 管理費(@坪単価) (税抜) | ****(***)(-) |
---|---|---|---|
敷金(保証金) | *** | 礼金/償却 | ***/*** |
更新料 | *** | 仲介手数料 | *** |
その他費用 | |||
所在地 | 東京都千代田区三番町7-1 | ||
交通 |
東京メトロ半蔵門線/ 半蔵門 徒歩5分 中央・総武線/ 市ケ谷 徒歩7分 東京メトロ有楽町線/ 麹町 徒歩10分 |
||
間取り | 1R | 間取り内訳 | 洋室 |
平米数(坪数) | 23.49m² (7.10坪) | 契約形態/契約期間 | -/*** |
築年月(築年数) | 1986年01月(築39.8年) | 方位 | 東 |
建物構造 | RC(鉄筋コンクリート) | 所在階/階建 | *** / 7階建(B0階) |
総戸数 | - | 駐車場 | - |
引渡 | 相談 | 現況 | 居住中 |
エレベーター | 1 基 | 空調 | 個別 |
床仕様 | タイルカーぺット | トイレ | 洋式 |
給湯 | 有り | 楽器 | - |
設備・条件 | エレベーター、分譲賃貸、シャワー付き、2階以上、エアコン、敷金3ヶ月以下 | ||
備考 | |||
周辺施設 | |||
物件番号 | 81536 | 取引態様 | 仲介 |
情報更新日 | *** |
4階部分、410号室の物件です。
2~3名で使用するのに適しています。
バルコニー付の明るい室内。
SOHO使用に適したコンパクトな室型で、レイアウトの工夫次第で有効活用できそうです。収納付。
室内は禁煙です。ご注意ください。
オートロックで安心してお過ごしいただけます☆
担当者からのコメント
スマートフォンをご利用の方は友達追加をして頂ければLINEでのやり取りができます。
【朝日三番町プラザ】内で空室はある?条件交渉はできる?等のご質問がございましたらお気軽にお問合せ下さい。
朝日三番町プラザご関係者各位
日々物件更新に努めておりますが、募集終了や募集条件の変更等にお気付きになられた場合は、
大変お手数ですが掲載情報修正申請にお力添えのほどお願い申し上げます。