フォトアルバム
| 賃料(@坪単価) (税抜) | ****(***) | 管理費(@坪単価) (税抜) | ****(***)(-) |
|---|---|---|---|
| 敷金(保証金) | *** | 礼金/償却 | ***/*** |
| 更新料 | *** | 仲介手数料 | *** |
| その他費用 | 看板料税別(契約時):***, | ||
| 所在地 | 東京都豊島区東池袋3丁目9-9 | ||
| 交通 |
山手線/ 池袋 徒歩7分 東京メトロ有楽町線/ 東池袋 徒歩9分 山手線/ 大塚 徒歩14分 |
||
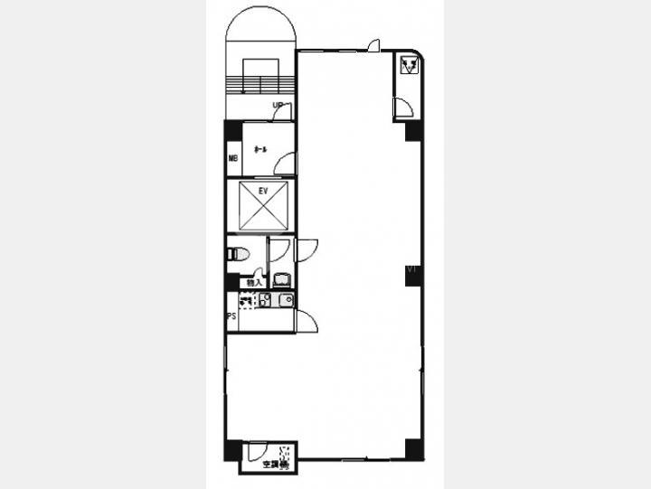
| 間取り | - | 間取り内訳 | |
| 平米数(坪数) | 72.04m² (21.79坪) | 契約形態/契約期間 | 定期借家/*** |
| 築年月(築年数) | 1987年09月(築38.1年) | 方位 | - |
| 建物構造 | SRC(鉄骨鉄筋コンクリート) | 所在階/階建 | *** / 10階建(B0階) |
| 総戸数 | - | 駐車場 | 無 |
| 引渡 | 2017年01月上旬 | 現況 | 空家 |
| エレベーター | 1 基 | 空調 | 個別 |
| 床仕様 | タイルカーぺット | トイレ | 洋式 |
| 給湯 | 有り | 楽器 | - |
| 設備・条件 | エレベーター、1フロア1テナント、2階以上、エアコン | ||
| 備考 | 原則保証会社利用 保険要加入 業種相談(事務所使用のみ) 電話回線30回線可能(室内回線、MDFからは要調査) 再契約可(再契約手数料1ヶ月分) |
||
| 周辺施設 | |||
| 物件番号 | 83226 | 取引態様 | 仲介 |
| 情報更新日 | *** | ||
6階部分1フロア1テナントの賃貸事務所物件です。
7~10人規模のオフィス向けの広さです。
複数路線にアクセスしやすい立地ですので、ビジネスの拠点に最適です!
冷暖房2基完備なので快適にお仕事をしていただけます!
光回線導入済み!
担当者からのコメント
![]()
スマートフォンをご利用の方は友達追加をして頂ければLINEでのやり取りができます。
【明昌KSビル】内で空室はある?条件交渉はできる?等のご質問がございましたらお気軽にお問合せ下さい。
明昌KSビル/仲介手数料無料の区画ありご関係者各位
日々物件更新に努めておりますが、募集終了や募集条件の変更等にお気付きになられた場合は、
大変お手数ですが掲載情報修正申請にお力添えのほどお願い申し上げます。












