フォトアルバム
| 賃料(@坪単価) (税抜) | ****(***) | 管理費(@坪単価) (税抜) | ****(***)(-) |
|---|---|---|---|
| 敷金(保証金) | *** | 礼金/償却 | ***/*** |
| 更新料 | *** | 仲介手数料 | *** |
| その他費用 | 保険料: | ||
| 所在地 | 東京都中央区築地2丁目1-2 | ||
| 交通 |
東京メトロ有楽町線/ 新富町 徒歩2分 東京メトロ日比谷線/ 築地 徒歩3分 東京メトロ日比谷線/ 東銀座 徒歩7分 |
||
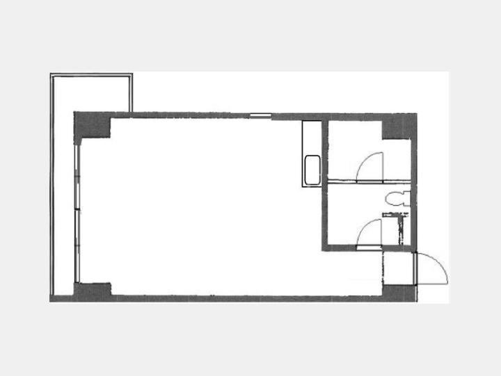
| 間取り | - | 間取り内訳 | 洋室 バルコニー |
| 平米数(坪数) | 41.59m² (12.58坪) | 契約形態/契約期間 | -/*** |
| 築年月(築年数) | 1971年02月(築54.7年) | 方位 | - |
| 建物構造 | RC(鉄筋コンクリート) | 所在階/階建 | *** / 12階建(B0階) |
| 総戸数 | - | 駐車場 | - |
| 引渡 | 2020年05月上旬 | 現況 | - |
| エレベーター | 1 基 | 空調 | 個別 |
| 床仕様 | カーペット | トイレ | 洋式 |
| 給湯 | 有り | 楽器 | - |
| 設備・条件 | エレベーター、2階以上、エアコン | ||
| 備考 | 賃料に別途消費税・保険にご加入いただきます 夜間オートロック 光ファイバー完備 ゴミ置き場24時間利用可能 入退去料あり(管理規約上)/各20,000円+税 |
||
| 周辺施設 | |||
| 物件番号 | 84193 | 取引態様 | 仲介 |
| 情報更新日 | *** | ||
地上12階建て4階部分、約41㎡のオフィス物件です。
シンプルでコンパクトなオフィスをお探しの方に最適です。
バルコニーに面した大きな窓が設置されており、開放感があるお部屋です。エアコン付き!
中央区役所、築地署が至近の好立地!
銀座へのアクセスも良いのでお勧めです。
☆☆入居時の条件交渉はお任せください☆☆
担当者からのコメント
![]()
スマートフォンをご利用の方は友達追加をして頂ければLINEでのやり取りができます。
【秀和築地レジデンス】内で空室はある?条件交渉はできる?等のご質問がございましたらお気軽にお問合せ下さい。
秀和築地レジデンスご関係者各位
日々物件更新に努めておりますが、募集終了や募集条件の変更等にお気付きになられた場合は、
大変お手数ですが掲載情報修正申請にお力添えのほどお願い申し上げます。












