フォトアルバム
| 賃料(@坪単価) (税抜) | ****(***) | 管理費(@坪単価) (税抜) | ****(***)(@2,999円) |
|---|---|---|---|
| 敷金(保証金) | *** | 礼金/償却 | ***/*** |
| 更新料 | *** | 仲介手数料 | *** |
| その他費用 | 保険料2年: | ||
| 所在地 | 東京都新宿区西新宿4丁目32-4 | ||
| 交通 |
都営大江戸線/ 都庁前 徒歩6分 都営大江戸線/ 西新宿五丁目 徒歩8分 山手線/ 新宿 徒歩14分 |
||
| 間取り | - | 間取り内訳 | |
| 平米数(坪数) | 103.90m² (31.43坪) | 契約形態/契約期間 | 普通借家/*** |
| 築年月(築年数) | 1979年06月(築46.5年) | 方位 | - |
| 建物構造 | SRC(鉄骨鉄筋コンクリート) | 所在階/階建 | *** / 13階建- |
| 総戸数 | - | 駐車場 |
空有 -台/
- 40,000円 空き要確認 |
| 引渡 | 相談 | 現況 | 賃貸中 |
| エレベーター | 3 基 | 空調 | 個別 |
| 床仕様 | OAフロア | トイレ | 共用 |
| 給湯 | 有り | 楽器 | - |
| 設備・条件 | 駐輪場、1階がカフェ、エレベーター、分譲賃貸、角部屋、2階以上、礼金無し、駐車場あり、エアコン、OAフロア、仲介手数料無料 | ||
| 備考 | ・課税項目には別途消費税あり | ||
| 周辺施設 | |||
| 物件番号 | 84242 | 取引態様 | 仲介 |
| 情報更新日 | *** | ||
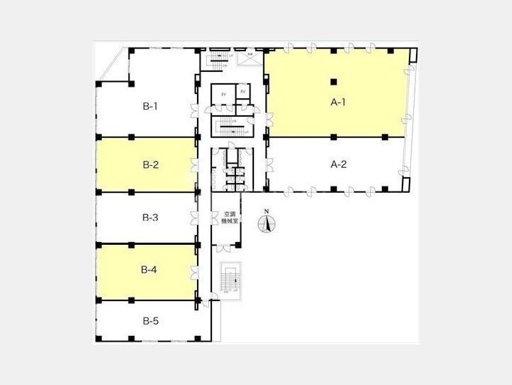
3階部分の賃貸事務所物件です。
10~15人規模のオフィス向けの広さです。
複数路線余裕の徒歩圏内!
長方形で使い勝手の良い室内!
冷暖房完備なので快適にお仕事をしていただけます!
共用部分に嬉しい男女別トイレ有り!
管理人常駐で安心です!
駐輪場があるので、近所への買い物も楽ですね。
☆★☆★仲介手数料無料★☆★☆
担当者からのコメント
![]()
スマートフォンをご利用の方は友達追加をして頂ければLINEでのやり取りができます。
【ハイネスロフティ】内で空室はある?条件交渉はできる?等のご質問がございましたらお気軽にお問合せ下さい。
ハイネスロフティ/仲介手数料無料のお部屋がありますご関係者各位
日々物件更新に努めておりますが、募集終了や募集条件の変更等にお気付きになられた場合は、
大変お手数ですが掲載情報修正申請にお力添えのほどお願い申し上げます。












