フォトアルバム
| 賃料(@坪単価) (税抜) | ****(***) | 管理費(@坪単価) (税抜) | ****(***)(-) |
|---|---|---|---|
| 敷金(保証金) | *** | 礼金/償却 | ***/*** |
| 更新料 | *** | 仲介手数料 | *** |
| その他費用 | 日新火災 Lプラン:***, | ||
| 所在地 | 東京都港区芝大門1丁目4-4 | ||
| 交通 |
都営大江戸線/ 大門 徒歩3分 山手線/ 浜松町 徒歩7分 都営三田線/ 御成門 徒歩5分 |
||
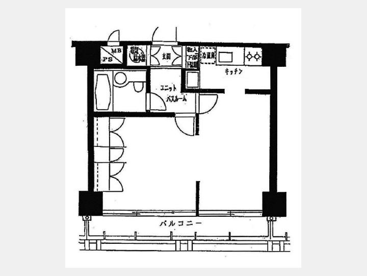
| 間取り | 2K | 間取り内訳 |
洋室 8.4 畳 6 階 1 室 洋室 8.2 畳 6 階 1 室 K 3.5 畳 6 階 1 室 |
| 平米数(坪数) | 45.50m² (13.76坪) | 契約形態/契約期間 | 普通借家/*** |
| 築年月(築年数) | 1983年01月(築42.8年) | 方位 | - |
| 建物構造 | SRC(鉄骨鉄筋コンクリート) | 所在階/階建 | *** / 12階建(B1階) |
| 総戸数 | - | 駐車場 | - |
| 引渡 | 2017年03月下旬 | 現況 | 賃貸中 |
| エレベーター | 2 基 | 空調 | 個別 |
| 床仕様 | - | トイレ | 洋式 |
| 給湯 | 有り | 楽器 | - |
| 設備・条件 | オートロック、会議室付き、1階がコンビニ、エレベーター、機械警備、室内洗濯機置き場、分譲賃貸、シャワー付き、2階以上、エアコン、敷金一ヶ月、敷金3ヶ月以下 | ||
| 備考 | 事務所利用の場合:敷金2ヶ月、別途消費税 民泊用途禁止(管理規約制定) 共用エントランスは平日8月~土)21時~翌午前5時までオートロック |
||
| 周辺施設 | |||
| 物件番号 | 87411 | 取引態様 | 仲介 |
| 情報更新日 | *** | ||
6階部分の分譲賃貸マンションです!事務所利用可能♪
複数路線余裕の徒歩圏内!
冷暖房2基完備なので快適にお仕事をしていただけます!
光ファイバー・BS・CS対応。
安心のオートロック&防犯カメラ&機械警備!
エレベーターは2基ついており、混雑時などもスムーズです。
入居時に必要な保証金(敷金)も比較的安価です!
担当者からのコメント
![]()
スマートフォンをご利用の方は友達追加をして頂ければLINEでのやり取りができます。
【ノア芝大門】内で空室はある?条件交渉はできる?等のご質問がございましたらお気軽にお問合せ下さい。
ノア芝大門ご関係者各位
日々物件更新に努めておりますが、募集終了や募集条件の変更等にお気付きになられた場合は、
大変お手数ですが掲載情報修正申請にお力添えのほどお願い申し上げます。












