新虎ノ門実業会館(新館)[満室]の賃貸オフィス、貸事務所物件情報

本情報は過去に掲載された物件の参考情報です。 最新の物件情報など詳細につきましてはお気軽にお問合せください。

所在地
交通
賃料(@坪単価) (税抜)
管理費(@坪単価) (税抜)
敷金(保証金)
礼金
償却
仲介手数料
間取り
平米数(坪数)
物件種別
築年数
方位
構造
所在階/階建
総戸数
東京都港区虎ノ門1丁目1-21
東京メトロ銀座線/ 虎ノ門  徒歩1分
東京メトロ丸ノ内線/ 霞ケ関  徒歩3分
東京メトロ千代田線/ 霞ケ関  徒歩3分
****(***)
****(***) (@5,950円)
***/***
***
***
***
-
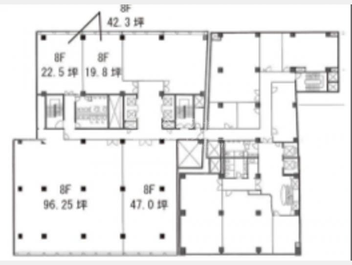
139.81m² (42.30坪)
賃貸事務所・賃貸オフィス
1965年11月
(築59.9年)
-
SRC(鉄骨鉄筋コンクリート)
***/ 9階建(B0階)
0戸

フォトアルバム

外観【新虎ノ門実業会館(新館)】

外観【新虎ノ門実業会館(新館)】

外観【新虎ノ門実業会館(新館)】

外観【新虎ノ門実業会館(新館)】

外観【新虎ノ門実業会館(新館)】

外観【新虎ノ門実業会館(新館)】

外観【新虎ノ門実業会館(新館)】

外観【新虎ノ門実業会館(新館)】

外観【新虎ノ門実業会館(新館)】

外観【新虎ノ門実業会館(新館)】

外観【新虎ノ門実業会館(新館)】

外観【新虎ノ門実業会館(新館)】

外観【新虎ノ門実業会館(新館)】

外観【新虎ノ門実業会館(新館)】

外観【新虎ノ門実業会館(新館)】

外観【新虎ノ門実業会館(新館)】

外観【新虎ノ門実業会館(新館)】

外観【新虎ノ門実業会館(新館)】

物件入口【新虎ノ門実業会館(新館)】

物件入口【新虎ノ門実業会館(新館)】

エントランス【新虎ノ門実業会館(新館)】

エントランス【新虎ノ門実業会館(新館)】

エントランス【新虎ノ門実業会館(新館)】

エントランス【新虎ノ門実業会館(新館)】

エレベーター【新虎ノ門実業会館(新館)】

エレベーター【新虎ノ門実業会館(新館)】

物件前通り【新虎ノ門実業会館(新館)】

物件前通り【新虎ノ門実業会館(新館)】

物件前通り【新虎ノ門実業会館(新館)】

物件前通り【新虎ノ門実業会館(新館)】

前の写真次の写真

賃料(@坪単価) (税抜) ****(***) 管理費(@坪単価) (税抜) ****(***)(@5,950円)
敷金(保証金) *** 礼金/償却 ***/***
更新料 *** 仲介手数料 ***
その他費用
所在地 東京都港区虎ノ門1丁目1-21
交通 東京メトロ銀座線/ 虎ノ門  徒歩1分
東京メトロ丸ノ内線/ 霞ケ関  徒歩3分
東京メトロ千代田線/ 霞ケ関  徒歩3分
間取り - 間取り内訳
平米数(坪数) 139.81m² (42.30坪) 契約形態/契約期間 普通借家/***
築年月(築年数) 1965年11月(築59.9年) 方位 -
建物構造 SRC(鉄骨鉄筋コンクリート) 所在階/階建 *** / 9階建(B0階)
総戸数 - 駐車場 -
引渡 即時 現況 -
エレベーター 4 基 空調 個別
床仕様 OAフロア トイレ 男女別
給湯 - 楽器 -
設備・条件 1階がコンビニ、エレベーター、角部屋、2階以上、礼金無し、即入居可、エアコン、男女別トイレ、OAフロア
備考 賃料、共益費に別途消費税
周辺施設
物件番号 88644 取引態様 仲介
情報更新日 ***

8階部分、約139㎡の賃貸オフィスです。
20〜23人規模でのご利用におすすめの広さがございます。

☆★更新料、償却費ゼロ物件!★☆

空調・電気・共用部等リニューアル済み!
キレイなオフィスでお仕事してみませんか(*^^*)
床はOAフロアで配線が気になりません。
管理人常駐なので万が一の時も安心です♪
トイレは共用部ですが、その分室内を広く使えて集中して仕事ができる環境です。

この物件に関するご相談・お問い合わせはこちら 受付時間 10:00〜19:00 050-3033-5986

この物件を空き待ちする

担当者からのコメント

友だち追加
スマートフォンをご利用の方は友達追加をして頂ければLINEでのやり取りができます。
【新虎ノ門実業会館】内で空室はある?条件交渉はできる?等のご質問がございましたらお気軽にお問合せ下さい。

新虎ノ門実業会館(新館)ご関係者各位

日々物件更新に努めておりますが、募集終了や募集条件の変更等にお気付きになられた場合は、
大変お手数ですが掲載情報修正申請にお力添えのほどお願い申し上げます。

問い合わせ

は、必須入力項目です。

会社名
(個人事業主様はお名前をご入力下さい。)
お名前 姓: 名:

[記入例]東京 太郎  最大各255文字

フリガナ セイ: メイ:

[記入例]トウキョウ タロウ  最大各255文字

電話番号

- -

(半角数字)[記入例]090-1234-5678  最大各4文字

メールアドレス

[記入例]sample@example.com  最大255文字

メールアドレス(再入力)
お問い合わせ内容

新虎ノ門実業会館(新館)の部屋を
お持ちのオーナー様へ

新虎ノ門実業会館(新館)の
予想売却価格

1億2500万円

1億3200万円

希望物件無料リクエスト こんなお悩みありませんか? 物件探しに時間が取れない方 最新物件・未掲載物件情報がほしい方 物件探しのプロにお任せ下さい! 無料リクエストはこちら

この物件の空き待ちをする お気に入り物件に登録

この物件の他の空室

間取り
専有面積
賃料
管理費
敷金
礼金
9F 52.89m² 35.2万円
10.472万円
12ヶ月
-
9F 52.90m² 35.2万円
10.472万円
12ヶ月
-
B1 89.26m² 59.4万円
17.6715万円
15ヶ月
-
B2 89.26m² 59.4万円
17.6715万円
15ヶ月
-
B2 89.26m² 59.4万円
17.6715万円
15ヶ月
-
B1 180.50m² 120.12万円
35.7357万円
15ヶ月
-
B1 180.49m² 120.12万円
35.7357万円
15ヶ月
-
8F 318.19m² 211.75万円
62.9956万円
12ヶ月
-

この物件に似ている物件

ページトップへ