フォトアルバム
| 賃料(@坪単価) (税抜) | 483,800円 (@15,403円) | 管理費(@坪単価) (税抜) | 138,204円 (@4,400円) |
|---|---|---|---|
| 敷金(保証金) | 6ヶ月 | 礼金/償却 | 1ヶ月/- |
| 更新料 | - | 仲介手数料 | 一律 |
| その他費用 | |||
| 所在地 | 東京都千代田区神田小川町2丁目2-2 | ||
| 交通 |
中央・総武線/ 御茶ノ水 徒歩7分 |
||
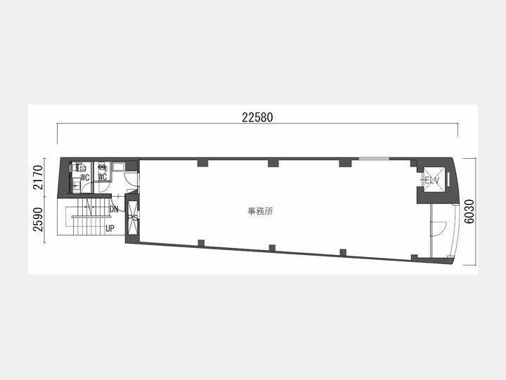
| 間取り | - | 間取り内訳 | |
| 平米数(坪数) | 103.83m² (31.41坪) | 契約形態/契約期間 | 定期借家/4年 |
| 築年月(築年数) | 1987年12月(築38.9年) | 方位 | - |
| 建物構造 | 鉄骨造 | 所在階/階建 | 3階 / 9階建- |
| 総戸数 | - | 駐車場 | 無 |
| 引渡 | 即時 | 現況 | 空家 |
| エレベーター | - | 空調 | - |
| 床仕様 | - | トイレ | - |
| 給湯 | - | 楽器 | - |
| 設備・条件 | 保証人不要、飲食店可、2階以上、即入居可 | ||
| 備考 | |||
| 周辺施設 | |||
| 物件番号 | 907334 | 取引態様 | 媒介 |
| 情報更新日 | 2025年10月31日 | ||
小川町B5ビルご関係者各位
日々物件更新に努めておりますが、募集終了や募集条件の変更等にお気付きになられた場合は、
大変お手数ですが掲載情報修正申請にお力添えのほどお願い申し上げます。












