新宿セブンビル[満室]の賃貸オフィス、貸事務所物件情報

本情報は過去に掲載された物件の参考情報です。 最新の物件情報など詳細につきましてはお気軽にお問合せください。

所在地
交通
賃料(@坪単価) (税抜)
管理費(@坪単価) (税抜)
敷金(保証金)
礼金
償却
仲介手数料
間取り
平米数(坪数)
物件種別
築年数
方位
構造
所在階/階建
総戸数
東京都新宿区新宿2丁目8-1
東京メトロ丸ノ内線/ 新宿御苑前  徒歩1分
都営新宿線/ 新宿三丁目  徒歩4分
山手線/ 新宿  徒歩10分
****(***)
****(***) (@2,496円)
***/***
***
***
***
-
133.37m² (40.35坪)
賃貸事務所・賃貸オフィス
1973年12月
(築51.9年)
南東向き
SRC(鉄骨鉄筋コンクリート)
***/ 10階建(B1階)
0戸

フォトアルバム

外観
外観 【新宿セブンビル】

外観 【新宿セブンビル】

外観 【新宿セブンビル】

外観 【新宿セブンビル】

外観 【新宿セブンビル】

外観 【新宿セブンビル】

外観 【新宿セブンビル】

外観 【新宿セブンビル】

入口 【新宿セブンビル】

入口 【新宿セブンビル】

入口 【新宿セブンビル】

入口 【新宿セブンビル】

入口 【新宿セブンビル】

入口 【新宿セブンビル】

エレベーター 【新宿セブンビル】

エレベーター 【新宿セブンビル】

周辺道路 【新宿セブンビル】

周辺道路 【新宿セブンビル】

周辺道路 【新宿セブンビル】

周辺道路 【新宿セブンビル】

前の写真次の写真

賃料(@坪単価) (税抜) ****(***) 管理費(@坪単価) (税抜) ****(***)(@2,496円)
敷金(保証金) *** 礼金/償却 ***/***
更新料 *** 仲介手数料 ***
その他費用 保険加入義務: 保証会社必須:
所在地 東京都新宿区新宿2丁目8-1
交通 東京メトロ丸ノ内線/ 新宿御苑前  徒歩1分
都営新宿線/ 新宿三丁目  徒歩4分
山手線/ 新宿  徒歩10分
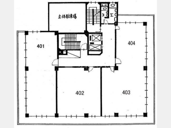
間取り - 間取り内訳
平米数(坪数) 133.37m² (40.35坪) 契約形態/契約期間 定期借家/***
築年月(築年数) 1973年12月(築51.9年) 方位 南東
建物構造 SRC(鉄骨鉄筋コンクリート) 所在階/階建 *** / 10階建(B1階)
総戸数 - 駐車場 空無

駐車場敷金 1ヶ月
※空き状況要確認

引渡 相談 現況 賃貸中
エレベーター 2 基 空調 個別
床仕様 - トイレ 共用
給湯 - 楽器 -
設備・条件 1階がコンビニ、エレベーター、角部屋、2階以上、礼金無し、エアコン
備考 ・課税項目には別途消費税あり
・解約予告3ヶ月前
・現況優先
周辺施設
物件番号 91039 取引態様 仲介
情報更新日 ***

4階、約133㎡の賃貸事務所物件です。
約20名で使用するのに適しています。
人気の角部屋です!
トイレはフロア共用ですが男女別です。女性の方も安心して利用できます。
冷暖房完備なので快適にお仕事して頂けると思います。
副都心・新宿商圏至近の便利な好立地!ぜひご活用下さいませ!

この物件に関するご相談・お問い合わせはこちら 受付時間 10:00〜19:00 050-3033-5986

この物件を空き待ちする

担当者からのコメント

友だち追加
スマートフォンをご利用の方は友達追加をして頂ければLINEでのやり取りができます。
【新宿セブンビル】内で空室はある?条件交渉はできる?等のご質問がございましたらお気軽にお問合せ下さい。

新宿セブンビルご関係者各位

日々物件更新に努めておりますが、募集終了や募集条件の変更等にお気付きになられた場合は、
大変お手数ですが掲載情報修正申請にお力添えのほどお願い申し上げます。

問い合わせ

は、必須入力項目です。

会社名
(個人事業主様はお名前をご入力下さい。)
お名前 姓: 名:

[記入例]東京 太郎  最大各255文字

フリガナ セイ: メイ:

[記入例]トウキョウ タロウ  最大各255文字

電話番号

- -

(半角数字)[記入例]090-1234-5678  最大各4文字

メールアドレス

[記入例]sample@example.com  最大255文字

メールアドレス(再入力)
お問い合わせ内容

新宿セブンビルの部屋を
お持ちのオーナー様へ

新宿セブンビルの
予想売却価格

1億2500万円

1億3200万円

希望物件無料リクエスト こんなお悩みありませんか? 物件探しに時間が取れない方 最新物件・未掲載物件情報がほしい方 物件探しのプロにお任せ下さい! 無料リクエストはこちら

この物件の空き待ちをする お気に入り物件に登録

この物件の他の空室

間取り
専有面積
賃料
管理費
敷金
礼金
9F 1K
54.90m²
29.22万円
-
6ヶ月
1ヶ月

この物件に似ている物件

ページトップへ