| 賃料(@坪単価) (税抜) | 188,100円 (@11,000円) | 管理費(@坪単価) (税抜) | 56,430円 (@3,300円) |
|---|---|---|---|
| 敷金(保証金) | 10ヶ月 | 礼金/償却 | -/1ヶ月 |
| 更新料 | 1ヶ月 | 仲介手数料 | 一律 |
| その他費用 | |||
| 所在地 | 東京都港区西新橋1丁目22番 | ||
| 交通 |
東京メトロ銀座線/ 虎ノ門 徒歩3分 |
||
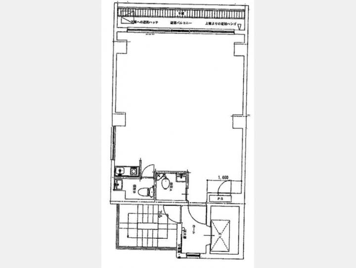
| 間取り | - | 間取り内訳 | |
| 平米数(坪数) | 56.52m² (17.10坪) | 契約形態/契約期間 | 普通借家/2年 |
| 築年月(築年数) | 1982年01月(築43年) | 方位 | - |
| 建物構造 | RC(鉄筋コンクリート) | 所在階/階建 | 4階 / 6階建- |
| 総戸数 | - | 駐車場 | - |
| 引渡 | - | 現況 | 空家 |
| エレベーター | - | 空調 | - |
| 床仕様 | - | トイレ | - |
| 給湯 | - | 楽器 | - |
| 設備・条件 | 2階以上 | ||
| 備考 | |||
| 周辺施設 | |||
| 物件番号 | 915537 | 取引態様 | 媒介 |
| 情報更新日 | 2025年11月21日 | ||
丸万7号館ご関係者各位
日々物件更新に努めておりますが、募集終了や募集条件の変更等にお気付きになられた場合は、
大変お手数ですが掲載情報修正申請にお力添えのほどお願い申し上げます。












