フォトアルバム
| 賃料(@坪単価) (税抜) | ****(***) | 管理費(@坪単価) (税抜) | ****(***)(@1,500円) |
|---|---|---|---|
| 敷金(保証金) | *** | 礼金/償却 | ***/*** |
| 更新料 | *** | 仲介手数料 | *** |
| その他費用 | |||
| 所在地 | 東京都千代田区外神田6丁目12-3 | ||
| 交通 |
東京メトロ銀座線/ 末広町 徒歩1分 山手線/ 御徒町 徒歩8分 中央・総武線/ 秋葉原 徒歩9分 |
||
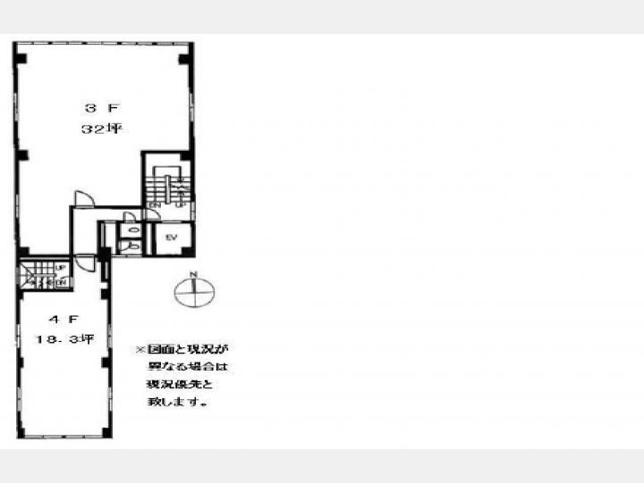
| 間取り | - | 間取り内訳 | |
| 平米数(坪数) | 105.79m² (32.00坪) | 契約形態/契約期間 | 定期借家/*** |
| 築年月(築年数) | 1980年01月(築45.8年) | 方位 | 北 |
| 建物構造 | RC(鉄筋コンクリート) | 所在階/階建 | *** / 7階建(B0階) |
| 総戸数 | - | 駐車場 | - |
| 引渡 | 即時 | 現況 | 空家 |
| エレベーター | 1 基 | 空調 | 個別 |
| 床仕様 | - | トイレ | 男女別 |
| 給湯 | 有り | 楽器 | - |
| 設備・条件 | エレベーター、角部屋、2階以上、即入居可、エアコン、男女別トイレ | ||
| 備考 | |||
| 周辺施設 | |||
| 物件番号 | 92687 | 取引態様 | 仲介 |
| 情報更新日 | *** | ||
3階部分の賃貸事務所物件です。
15~16名で使用するのに適しています。
三面採光、大きな窓面の明るい室内。
起業や小規模事務所に適したコンパクトな室型で、レイアウトの工夫次第で有効活用できそうです。
トイレはフロア共用で男女別です。女性の方も安心して利用できます。
☆☆入居時の条件交渉はお任せ下さい☆☆
担当者からのコメント
![]()
スマートフォンをご利用の方は友達追加をして頂ければLINEでのやり取りができます。
【ビックウエストビル3号館】内で空室はある?条件交渉はできる?等のご質問がございましたらお気軽にお問合せ下さい。
ビックウエストビル3号館ご関係者各位
日々物件更新に努めておりますが、募集終了や募集条件の変更等にお気付きになられた場合は、
大変お手数ですが掲載情報修正申請にお力添えのほどお願い申し上げます。












