フォトアルバム
| 賃料(@坪単価) (税抜) | ****(***) | 管理費(@坪単価) (税抜) | ****(***)(@2,000円) |
|---|---|---|---|
| 敷金(保証金) | *** | 礼金/償却 | ***/*** |
| 更新料 | *** | 仲介手数料 | *** |
| その他費用 | |||
| 所在地 | 東京都新宿区矢来町114 | ||
| 交通 |
東京メトロ東西線/ 神楽坂 徒歩2分 中央・総武線/ 飯田橋 徒歩10分 都営大江戸線/ 牛込神楽坂 徒歩7分 |
||
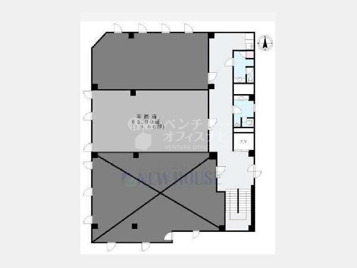
| 間取り | - | 間取り内訳 | |
| 平米数(坪数) | 65.00m² (19.66坪) | 契約形態/契約期間 | 普通借家/*** |
| 築年月(築年数) | 1991年04月(築34.6年) | 方位 | 南西 |
| 建物構造 | RC(鉄筋コンクリート) | 所在階/階建 | *** / 6階建(B2階) |
| 総戸数 | - | 駐車場 | 空有 -台/ - 40,000円 税込 |
| 引渡 | 即時 | 現況 | 空家 |
| エレベーター | 1 基 | 空調 | 個別 |
| 床仕様 | - | トイレ | 男女別 |
| 給湯 | 有り | 楽器 | - |
| 設備・条件 | オートロック、エレベーター、2階以上、即入居可、駐車場あり、エアコン、男女別トイレ | ||
| 備考 | 課税対象の項目については、別途消費税がかかります 店舗使用不可 保険加入義務有 更新事務手数料:新賃料の0.25ヶ月 |
||
| 周辺施設 | |||
| 物件番号 | 94982 | 取引態様 | 仲介 |
| 情報更新日 | *** | ||
4階部分の貸事務所です。10名程のオフィス向けの広さです。
人気の神楽坂エリアに立地している物件です。敷地内には人気のギャラリーがありますのでエントランスが特徴的になっております。
室内は窓が大きくとられており明るく開放的!設備としてはエアコンやEV、オートロックなどに対応しており、セキュリティ面も万全です。
光ファイバー導入済み!
担当者からのコメント
![]()
スマートフォンをご利用の方は友達追加をして頂ければLINEでのやり取りができます。
【高橋ビル】内で空室はある?条件交渉はできる?等のご質問がございましたらお気軽にお問合せ下さい。
高橋ビル/仲介手数料無料のお部屋ありご関係者各位
日々物件更新に努めておりますが、募集終了や募集条件の変更等にお気付きになられた場合は、
大変お手数ですが掲載情報修正申請にお力添えのほどお願い申し上げます。












