| 賃料(@坪単価) (税抜) | ****(***) | 管理費(@坪単価) (税抜) | ****(***)(@4,000円) |
|---|---|---|---|
| 敷金(保証金) | *** | 礼金/償却 | ***/*** |
| 更新料 | *** | 仲介手数料 | *** |
| その他費用 | |||
| 所在地 | 東京都中央区銀座5丁目1-8 | ||
| 交通 |
東京メトロ銀座線/ 銀座 徒歩2分 山手線/ 有楽町 徒歩5分 山手線/ 新橋 徒歩8分 |
||
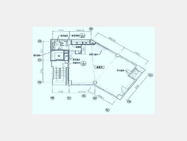
| 間取り | - | 間取り内訳 | |
| 平米数(坪数) | 88.12m² (26.66坪) | 契約形態/契約期間 | -/*** |
| 築年月(築年数) | 1989年11月(築35.9年) | 方位 | - |
| 建物構造 | SRC(鉄骨鉄筋コンクリート) | 所在階/階建 | *** / 8階建(B2階) |
| 総戸数 | - | 駐車場 | - |
| 引渡 | 即時 | 現況 | - |
| エレベーター | 1 基 | 空調 | 個別 |
| 床仕様 | - | トイレ | 洋式 |
| 給湯 | 有り | 楽器 | - |
| 設備・条件 | エレベーター、機械警備、2階以上、礼金無し、即入居可、エアコン | ||
| 備考 | |||
| 周辺施設 | |||
| 物件番号 | 98134 | 取引態様 | 仲介 |
| 情報更新日 | *** | ||
6階部分約88㎡の貸事務所です。
10~13人規模のオフィス向けの広さです。
機械警備システム導入済でセキュリティ面も安心の物件です。
新規内装工事済みです。
日当たり良好です!
☆☆入居時の条件交渉はお任せください☆☆
担当者からのコメント
![]()
スマートフォンをご利用の方は友達追加をして頂ければLINEでのやり取りができます。
【銀座MSビル】内で空室はある?条件交渉はできる?等のご質問がございましたらお気軽にお問合せ下さい。
銀座MSビルご関係者各位
日々物件更新に努めておりますが、募集終了や募集条件の変更等にお気付きになられた場合は、
大変お手数ですが掲載情報修正申請にお力添えのほどお願い申し上げます。












