フォトアルバム
| 賃料(@坪単価) (税抜) | ****(***) | 管理費(@坪単価) (税抜) | ****(***)(-) |
|---|---|---|---|
| 敷金(保証金) | *** | 礼金/償却 | ***/*** |
| 更新料 | *** | 仲介手数料 | *** |
| その他費用 | |||
| 所在地 | 東京都渋谷区神宮前6丁目18-10 | ||
| 交通 |
東京メトロ千代田線/ 明治神宮前 徒歩6分 山手線/ 渋谷 徒歩8分 東京メトロ副都心線/ 渋谷 徒歩4分 |
||
| 間取り | - | 間取り内訳 | |
| 平米数(坪数) | 92.45m² (27.97坪) | 契約形態/契約期間 | -/*** |
| 築年月(築年数) | 1989年03月(築36.7年) | 方位 | - |
| 建物構造 | 鉄骨造 | 所在階/階建 | *** / 7階建(B0階) |
| 総戸数 | - | 駐車場 | - |
| 引渡 | 即時 | 現況 | 空家 |
| エレベーター | 1 基 | 空調 | - |
| 床仕様 | スケルトン | トイレ | - |
| 給湯 | - | 楽器 | - |
| 設備・条件 | エレベーター、機械警備、スケルトン、1フロア1テナント、1階、即入居可、仲介手数料無料 | ||
| 備考 | 借家人賠償責任保険要加入 6年未満の償却20%(以後変動) |
||
| 周辺施設 | |||
| 物件番号 | 99012 | 取引態様 | 仲介 |
| 情報更新日 | *** | ||
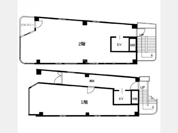
1-2階部分の店舗事務所物件です。
2フロア1テナントですので、他のテナントと共有することなく利用でき、各階用途別に利用できるのがポイント!
11~13名で使用するのに適しているお部屋です。
明治通りに面した好立地物件!
スケルトン渡しにつき、自由なレイアウトができそうです!
防犯(機械警備)付いています!
☆★仲介手数料無料です!!★☆
担当者からのコメント
![]()
スマートフォンをご利用の方は友達追加をして頂ければLINEでのやり取りができます。
【カワムラビル】内で空室はある?条件交渉はできる?等のご質問がございましたらお気軽にお問合せ下さい。
カワムラビルご関係者各位
日々物件更新に努めておりますが、募集終了や募集条件の変更等にお気付きになられた場合は、
大変お手数ですが掲載情報修正申請にお力添えのほどお願い申し上げます。












